Sold3/35 Simmons Street, South Yarra
A Chic & Convenient South Yarra Lifestyle
Enjoy an enviable South Yarra lifestyle - a little bit funky - very cool and so chic just metres from Chapel Street in the heart of South Yarra. The thoughtful design not only enhances the livability of the apartment but also positions it as an attractive investment opportunity with guaranteed appeal for both investors and owner-occupiers. The location adds a layer of desirability, contributing to the overall value proposition of the property. The convenience afforded by the two-level configuration is a standout feature. Residents have the freedom to adapt the space to suit their evolving needs, whether it's creating distinct zones for relaxation and work or establishing a private studio for professional endeavors. This adaptability aligns with the modern demand for dynamic living spaces that can effortlessly transition between various functions.
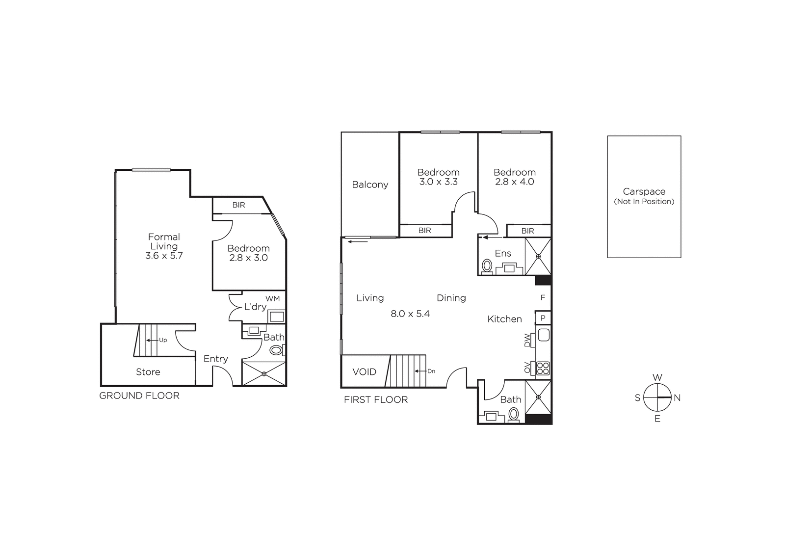
A trendy crisp white décor with contrasting grey carpets flows through both levels where large windows provide loads of natural light to the interior. With level one featuring a bathroom, concealed laundry, bedroom with built-in robes and the flexible living area. The upper level has two bedrooms, both with built-in robes, second bathroom plus a generous living and dining room incorporating a sleek kitchen equipped with stone bench tops, and prestige Artusi induction cooktop, oven and integrated dishwasher. Opening to a balcony with ample space for indoor/outdoor relaxation and entertaining. Other features include video intercom security entrance, R/C air conditioners on both levels and a level one car space,
This exciting opportunity is just moments from the tranquil Rockley Gardens, Dye Works and Surrey Parks, it's an easy walk to the area's celebrated shopping, fashion outlets, cafes, restaurants and nightlife options offered by the Jam factory, Chapel Street, Toorak Road and the Toorak Village – as well as quick access to the CBD, transport options including South Yarra or Hawksburn Stations, city-bound trams; plus Como Cinema and the Prahran Market are just metres away.
Enquire about this property
Request Appraisal
Welcome to South Yarra 3141
Median House Price
$2,176,000
2 Bedrooms
$1,324,000
3 Bedrooms
$2,305,834
4 Bedrooms
$4,020,000
5 Bedrooms+
$5,150,001
South Yarra, an iconic Melbourne suburb, is renowned for its sophisticated charm, merging high-end retail, exquisite dining, and vibrant nightlife with green spaces.










