Sold2a Mowbray Street, Hawthorn East
Surprisingly Spacious in Premier Pocket
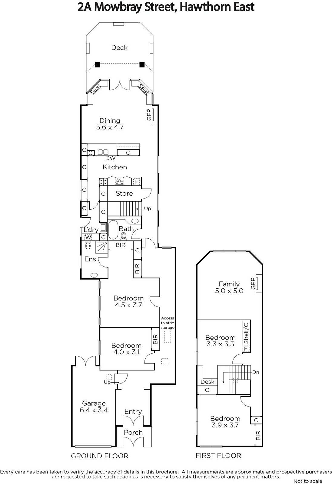
Remarkably discrete from the street yet filled with an abundance of accommodation, this elegant residence delivers immense lifestyle appeal moments from Anderson Park and Burke Road shopping. Upon entry, polished floorboards and high ceilings lead the way past the master bedroom with his/her built-in-robes and ensuite plus 2nd robed bedroom, while upstairs offers 1 robed bedroom and another bedroom/study, accompanied by a wet bar and light filled family retreat with fireplace and rooftop vistas. The magnificent kitchen is equipped with granite benches, freestanding oven/cooktop and Miele dishwasher, overlooking the sumptuous meals/family room featuring a gas fireplace and attractive garden aspect. French doors extend outside onto a sunny deck, while the backyard is perfectly set up for fruit and vegetable production, complete with a chicken coup. A family bathroom with WC and laundry complete the entry level. Further enhanced by ducted heating, split system air conditioning, video intercom, alarm, water tank, under stair storage, dust proof storage in the roof space, garden shed, single garage with internal access plus gated OSP for 2nd vehicle. Perfectly positioned for lifestyle living close to Tooronga Train Station, Tram on Burke Road, bus on Tooronga Road, quality schools, Burke Road shops and eateries, parkland plus ease of access to M1 Freeway.
Enquire about this property
Request Appraisal
Welcome to Hawthorn East 3123
Median House Price
$2,536,000
2 Bedrooms
$1,537,833
3 Bedrooms
$2,114,166
4 Bedrooms
$2,933,334
5 Bedrooms+
$4,051,667
Situated 7 kilometres east of Melbourne's centre, Hawthorn East offers a coveted mixture of greenery, historic charm, and modern amenities that cater to a wide range of preferences and lifestyles.













