Sold280 Beaconsfield Parade, Middle Park
Entertainer on Another Level
'Inspections By Private Appointment. Contact Agents to book an Inspection'
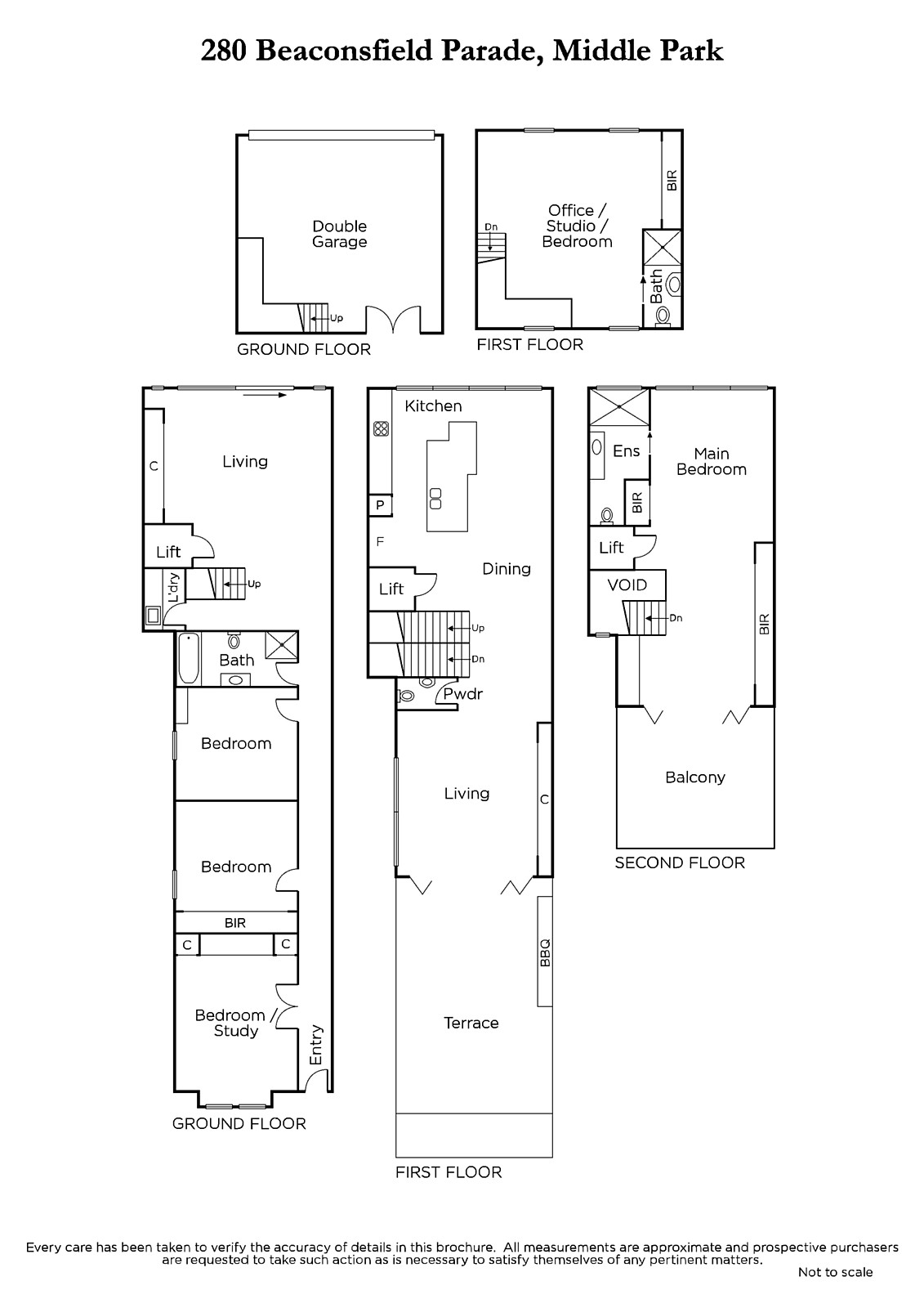
Overlooking the sands of Middle Park beach, this grand, circa 1880 Victorian villa presents a sublime fusion of heritage and contemporary design, tiered over three luxurious levels with panoramic Bay and city views -located in Melbourne's most premier beachfront position. Location aside, be presented with one of Beaconsfield Parade's largest outdoor entertaining spaces on both the beachside and rear of the property. An architectural masterpiece designed with a stunning timber staircase with glass balustrade expands across all three levels, with a long-term design element of a commercial-grade elevator also providing access to each level. This meticulous residence comprises 4-5 bedrooms, 3 bathrooms plus powder room, 3 living spaces, 2 Bay-facing alfresco terraces, indoor and outdoor kitchens, a heated swimming pool plus self-contained studio/home office above DLUG with storage. The expansive living level opens out in sleek contemporary style including a stunning gourmet kitchen with Corian benchtops, Miele appliances and 2 wine fridges. Matching, sleek built-in display cabinetry defines the casual lounge area that flows to the vast entertaining terrace with a coveted seating bench perfect to watch sunsets all year round. The entire top floor showcases the superb master suite, with some of the best views one could ask for. The ensuite, complete with floor to ceiling travertine-tiling, is framed by the city skyline and Dandenong Ranges. Perfectly located opposite a wide sandy stretch of Middle Park's famous beach.
Enquire about this property
Request Appraisal
Welcome to Middle Park 3206
Median House Price
$2,928,333
2 Bedrooms
$1,911,167
3 Bedrooms
$2,383,333
4 Bedrooms
$3,832,501
Between the city of Melbourne and the expansive waters of Port Phillip Bay, Middle Park is a prestigious suburb known for its well-preserved Victorian and Edwardian architecture.





























