Sold28 Hakea Drive, Mount Martha
Fully renovated and ready to welcome you
Joel Hood Property is practicing Responsible Real Estate–Inspection available by appointment anytime. We're here to help, please view the final slide on our photo reel for more information.
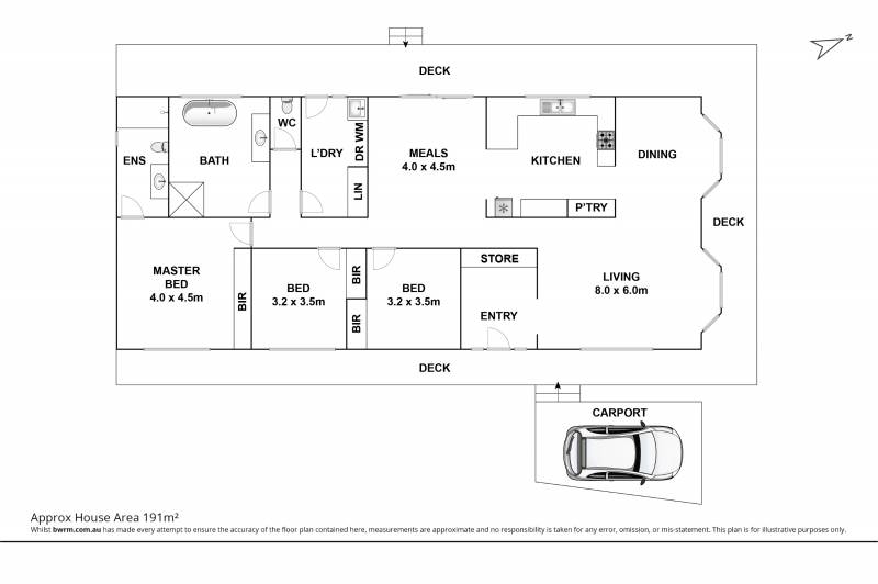
Located in a popular park-side pocket of Mt Martha this beautifully updated 3-bedroom family home secures new owners a wonderful lifestyle. Screened by established wattle trees the property sits on approximately 831m2 of level land with a fabulous decked entertaining area and a brilliant backyard perfect for children and pets alike, large enough for a future pool if desired or a possible subdivision (STCA).
Flanked by freshly painted wraparound verandas, inside the property has enjoyed a fabulous renovation from the front door to the back, yours to enjoy for years to come without lifting a finger! The main carpeted living area is spacious and inviting, flowing through to a sparkling modern kitchen boasting a full suite of S/S Bosch appliances, chic herringbone-tiled splashback, loads of storage with all soft-close drawers and sleek raised-height Caesarstone benchtops.
Follow the stunning engineered oak floors to a light filled meals area opening directly to the adjoining deck, the perfect setting for morning coffee amongst the yuccas or relaxed alfresco dining on balmy summer nights.
Zoned together to the rear lie 3 generously-proportioned, carpeted bedrooms all with built-in robes (master with mirrored doors), served by a flawless ensuite & huge family bathroom, both with frameless showers & floating vanities, the main also with freestanding 'egg' bath & separate WC.
Other great features include ducted heating and split system air conditioning in the lounge, double blinds & curtains throughout, quality solution-dyed nylon carpets, an updated laundry and ample built-in storage cupboards. Outside there's a fully fenced backyard with veggie boxes & large lock-up shed, a landscaped native front garden and a single carport.
Strolling distance to the nearby Dunn's Road Reserve & the Sherlock Family Playground, Bentons Square Shopping Centre and Osborne Primary School and just a few minutes' drive to pristine beaches, Main St and Mt Martha village, 28 Hakea Drive is the perfect opportunity to start enjoying the Peninsula lifestyle. An inspection will not disappoint, call Adrian Calcedo or Joel Hood today.
Enquire about this property
Request Appraisal
Welcome to Mount Martha 3934
Median House Price
$1,455,167
2 Bedrooms
$1,245,000
3 Bedrooms
$1,180,000
4 Bedrooms
$1,533,334
5 Bedrooms+
$2,507,500
Mount Martha, situated approximately 60 kilometres southeast of Melbourne's CBD on the Mornington Peninsula, offers a mix of beachside charm and suburban comfort.
























