Sold26 Hartington Street, Kew
Priced to Sell - $2,725,000
Deceptively generous in its overall proportions this impressive and beautifully renovated Edwardian family home is highlighted by unusually large informal living areas and a fabulous timber sundeck, solar/gas heated inground pool and a superbly landscaped garden featuring a magnificent Golden Elm tree all orientated to the north.
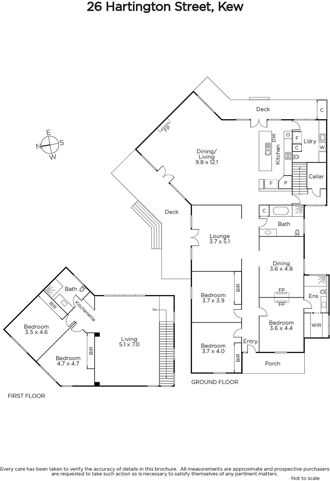
Retaining an array of period features it comprises: main bedroom with WIR and ensuite overlooking a fernery, 4 further bedrooms with BIRs, two modern family bathrooms, formal dining and sitting rooms, an upstairs informal living area with kitchen facilities and a superbly appointed kitchen with granite benchtops and Blanco stainless steel appliances adjacent to an expansive family/meals area which opens to the entertainment deck and private garden.
Other features include alarm, open & Jetmaster fire places, zoned hydronic heating and evaporative cooling, 3.2m ceilings (ground floor), Cat 5 cabling, double glazing upstairs, extensive storage including attic, temperature controlled 800 bottle cellar, salt chlorinating / self-cleaning pool, garden lighting & shed and auto gates leading to the double carport.
This flawlessly presented home is perfectly situated moments from the Harp and Kew Junction shopping precincts including Leo's Fine Foods and Toscanos, cafes and restaurants, Eglinton Reserve and Victoria Park, transport and there is easy access to the CBD, Yarra Valley and Mornington Peninsula via the Eastern Freeway.
Land: 765sqm approx.
Enquire about this property
Request Appraisal
Welcome to Kew 3101
Median House Price
$2,666,500
2 Bedrooms
$1,575,000
3 Bedrooms
$2,173,500
4 Bedrooms
$2,926,250
5 Bedrooms+
$4,580,000
Kew, positioned just 5 kilometres east of Melbourne's CBD, is renowned for its sophistication and elegance.













