For Sale26 Dudley Parade, Canterbury
An Exceptional Edwardian with Standout Style
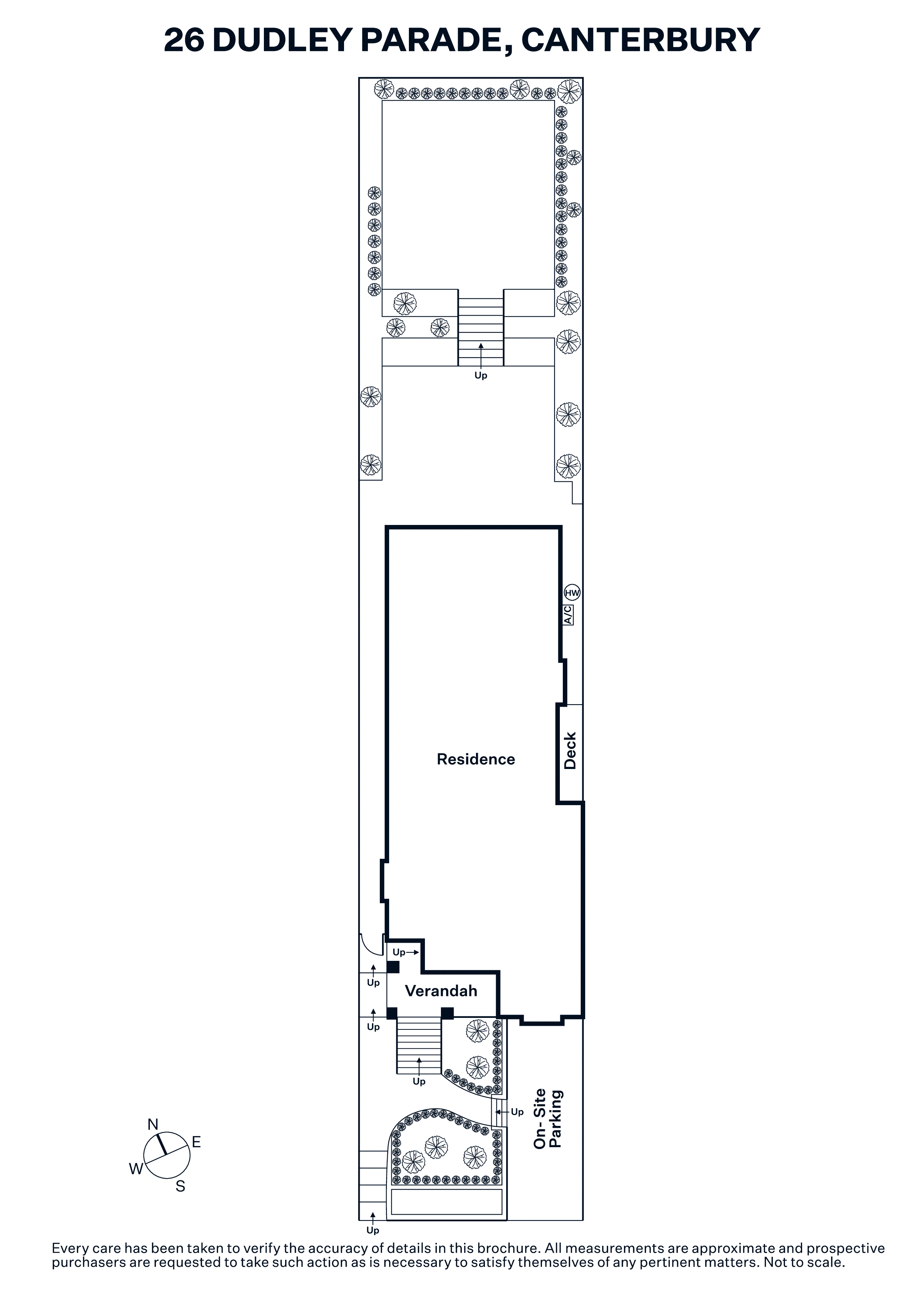
Commanding an elevated presence within a deep landscaped north facing garden, this charming solid brick c1900’s Edwardian residence’s captivating elegance has been brilliantly merged with exemplary designer style to create a sophisticated family domain.
Original Baltic pine floors, high ornate ceilings and leadlight windows are highlighted in the L-shaped hallway flowing through to three double bedrooms with fireplaces and built in robes, a 4th bedroom with robes, stylish bathroom with a lavish spa bath and a second bathroom. The expansive living and dining rooms with fireplace are served by a stunning entertainer’s kitchen appointed with stone benches and a 120cm Falcon oven. Elaborate steel framed doors open the living domain to a large bluestone terrace, perfect for al fresco dining and entertaining and the deep private north facing leafy garden. A versatile basement room is ideal as a home office, retreat, 5th bedroom or yoga studio (Class 10a).
In a prestigious location close to Maling Rd, East Camberwell and Canterbury stations, leading schools, Canterbury Gardens, Boroondara Park and the Outer Circle bike path, it includes security camera and sensor lights, ducted heating, A/C, laundry, under house storage, irrigation and off-street parking. Land size: 561 sqm approx.
Enquire about this property
Request Appraisal
Welcome to Canterbury 3126
Median House Price
$3,751,875
3 Bedrooms
$2,807,500
4 Bedrooms
$3,797,375
5 Bedrooms+
$4,402,500
Canterbury, 10 kilometres east of Melbourne's CBD, radiates exclusivity and prestige. This esteemed suburb is renowned for the picturesque Canterbury Road, lined with majestic trees, and the charming Maling Road shopping village.


















