Sold24 Dow Street, South Melbourne
Style and Lifestyle Excellence
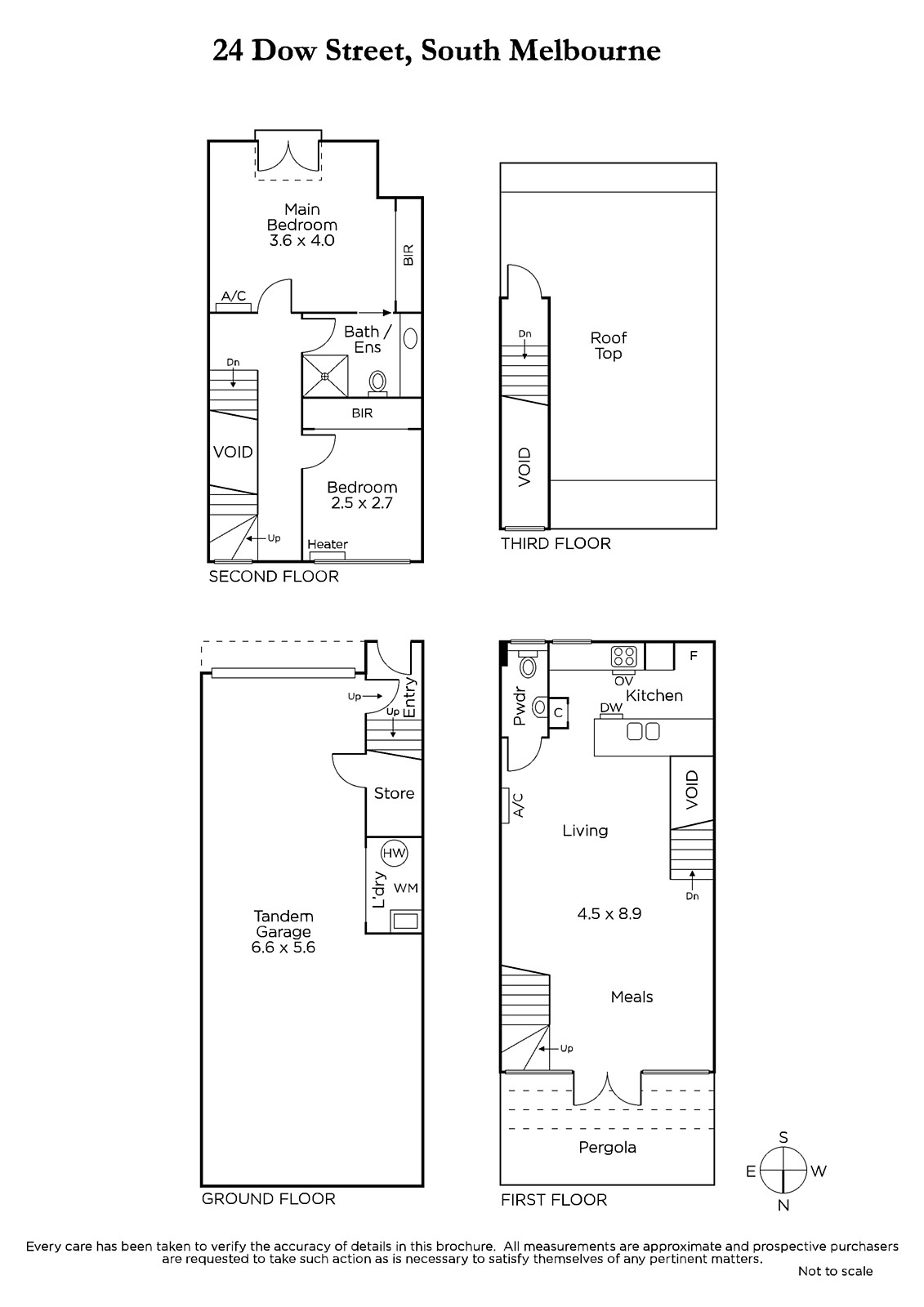
Stylish, spacious and sun-drenched, this sensational contemporary residence's immeasurable lifestyle appeal is further enhanced by a fabulous rooftop terrace commanding spectacular city views and an enviable location just moments from Clarendon Street, South Melbourne Market, Albert Park Lake, the beach, schools and trams to the city.
Rich Jarrah timber stairs lead up to a generously proportioned open plan living and dining room with a gourmet Miele kitchen featuring stone benches. The living room opens out to a lush private north facing terrace with retractable awning. On the level above, there are two spacious bedrooms with built in robes and a chic en suite/bathroom. The expansive sunny rooftop terrace is ideal for entertaining and enjoying the wonderful city views. A ground level tandem garage includes ample storage, a separate under stairs storeroom and laundry.
Impeccably appointed and presented, it also includes intercom, powder-room, remote garage entry and irrigation.
Enquire about this property
Request Appraisal
Welcome to South Melbourne 3205
Median House Price
$1,700,000
2 Bedrooms
$1,252,500
3 Bedrooms
$1,905,000
4 Bedrooms
$2,767,500
South Melbourne, situated just 2 kilometres from the heart of Melbourne’s CBD, is a vibrant and historic suburb known for its unique blend of cultural heritage, contemporary living, and dynamic community atmosphere.






















