Sold24 Chatham Road, Canterbury
Picture Perfect Family Entertainer
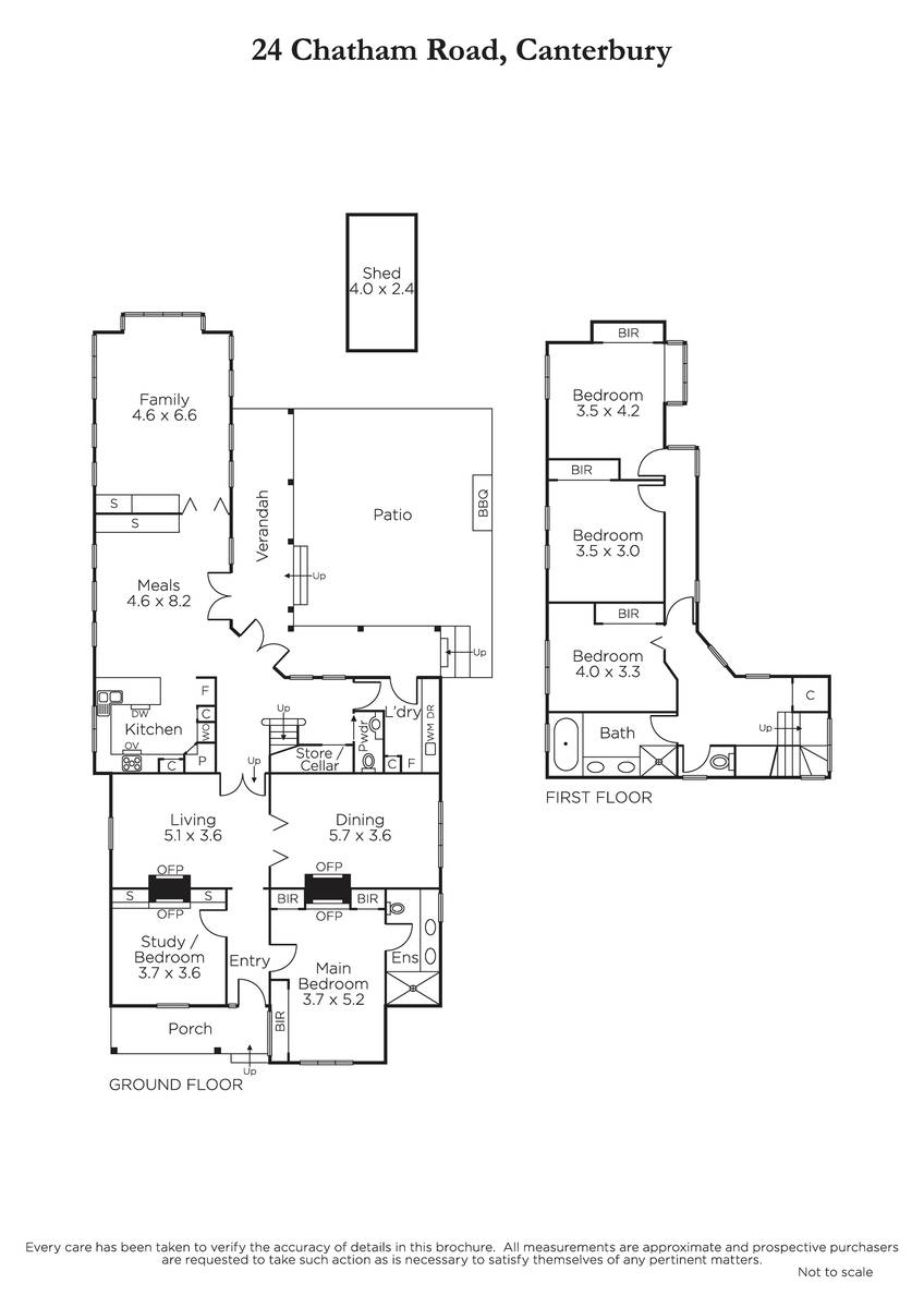
A stylish ambience, quality finishes and a commitment to harmonised period features throughout are the benchmarks of this superb Edwardian c1905 home delivering a totally relaxed environment in keeping with today's family lifestyle. Introduced by a picture perfect, captivating facade the fastidiously maintained interior is highlighted by an excellent floor-plan throughout its spacious, zoned accommodation which is ideal for families of all age groups and provides exceptional indoor/outdoor living and entertaining options around the solar heated in-ground pool in a leafy and tranquil garden setting, gently shaded by a mature Peppercorn tree.
The renovated and extended interior over two levels features Baltic Pine floors, four/five zoned bedrooms with BIRs, downstairs main with a sparkling ensuite, three upstairs with a fully-tiled family bathroom, a fitted study, formal sitting room with a pressed metal ceiling and formal dining. Through to a family dining area with Herringbone parquetry floors and a sleek CaesarStone kitchen equipped with prestige Miele, Smeg and Bosch stainless steel appliances, powder room and laundry plus a huge separate family room overlooking the alfresco entertaining area complete with a built-in gas barbeque. Other features of this superb home include alarm, front ducted heating and cooling, R/C air conditioners (living and upstairs), four original OFPs, Bose surround sound, plantation shutters, landscaped gardens with watering system and a tandem carport.
This impressive home is enviably located in one of Canterbury's finest tree-lined streets, in the much enjoyed heritage environs near Canterbury Sports Ground, moments from Surrey Hills or Maling Road Villages, Whitehorse Road shopping and dining plus a selection of Melbourne's finest schools, and walking distance to Chatham Station, public transport options and the John August Reserve.




















