Sold23 Horace Street, Malvern
Exciting Potential, Enticing Charm
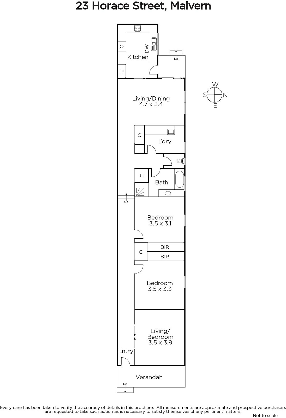
Enviably situated near Glenferrie Road shops and restaurants, schools and trams, the perennial allure of Victorian architecture is superbly illustrated by this charming block-fronted freestanding single level residence's immaculately presented and light-filled dimensions.
Set within beautiful landscaped gardens, the arched entrance hall featuring traditional high ceilings leads to an elegant sitting room/3rd bedroom, two glorious double bedrooms with built in robes and a bathroom with separate powder room. The sun-drenched dining room and bright modern kitchen open to the private west-facing paved garden with off street parking via rear lane.
An ideal lifestyle or investment opportunity, it also includes laundry and irrigation.
Enquire about this property
Request Appraisal
Welcome to Malvern 3144
Median House Price
$2,990,083
2 Bedrooms
$2,106,667
3 Bedrooms
$2,454,667
4 Bedrooms
$3,357,084
5 Bedrooms+
$4,654,999
Malvern, located just 8 kilometres southeast of Melbourne's CBD, epitomises suburban sophistication and elegance.












