Sold2/26 Powell Street, South Yarra
Lofty North-facing Sanctuary
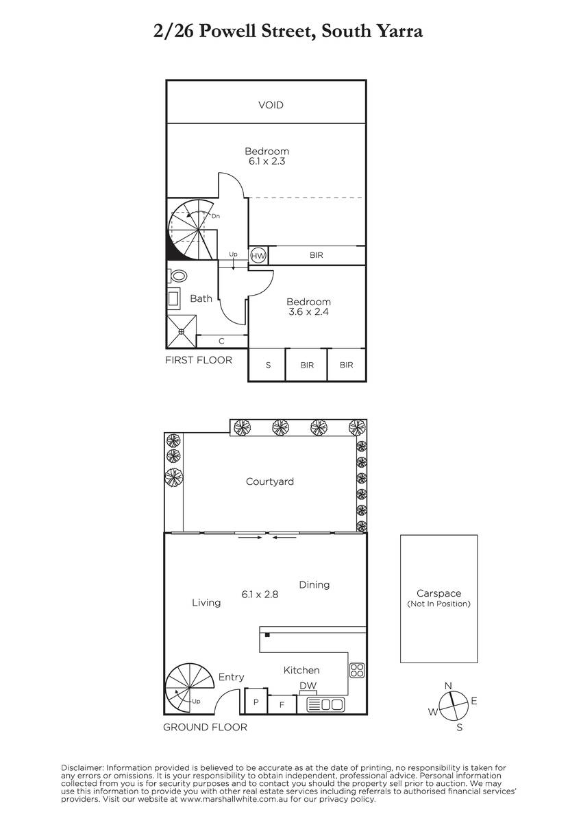
Ideally situated for a stylish lifestyle without compromise in one of South Yarra's favourite tree-lined streets, this lofty and light-filled north-facing, two bedroom townhouse is an evocative urban hideaway in a dream location. Under vaulted ceilings and with a lavish, north-facing alfresco flow, the home is one of only four in the block with undercover parking and easy pedestrian access not only to Toorak Road, but also to Chapel Street and Prahran Market.
Appointed with Miele and Chef appliances, with evocative dark timber-toned flooring, the kitchen overlooks dining and living where seamless connection to a peaceful, private and paved north-facing courtyard promises lavish relaxation or entertaining in the sunshine. The bedrooms are each set upstairs - the main bedroom with a wall of built-in robes and the second bedroom also with some cleverly crafted robe storage.
Walk to an extravagant diversity of local cafes, restaurants, bars and nightlife, as well as multiple tram lines and city-bound trains via South Yarra Railway Station.
Enquire about this property
Request Appraisal
Welcome to South Yarra 3141
Median House Price
$2,176,000
2 Bedrooms
$1,324,000
3 Bedrooms
$2,305,834
4 Bedrooms
$4,020,000
5 Bedrooms+
$5,150,001
South Yarra, an iconic Melbourne suburb, is renowned for its sophisticated charm, merging high-end retail, exquisite dining, and vibrant nightlife with green spaces.















