Leased1A Mernda Road, Kooyong
Exceptional Luxury in Exclusive Locale
Exclusively situated in a tightly held precinct and only a short stroll to Kooyong Village, Tennis Club and train station, this impressive family residence provides a flawless combination of elegance, contemporary luxury and exceptionally generous dimensions throughout.
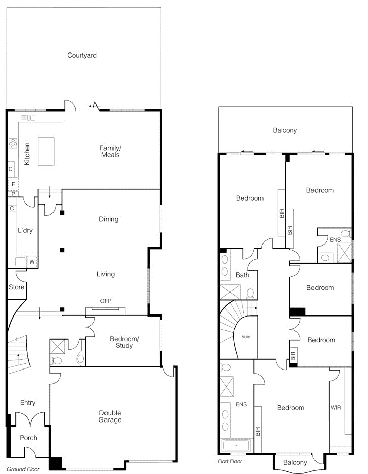
This home is defined by an imposing scale and rich parquetry, the entrance hall is highlighted by the sweeping lines of a curved staircase flowing through to a gracious sitting and formal dining room with gas-log fireplace. The open plan gourmet kitchen, boasting stainless steel and stone benches and Miele appliances and the inviting living/dining room opens to private north-facing landscaped courtyard garden.
Magnificent main bedroom complete with luxurious ensuite and WIR is complemented by four further double bedrooms with BIRs, two of which have ensuites and open to a wide north-facing sun terrace. A family bathroom completes the second level, whilst the ground includes a separate study or guest bedroom which is serviced by a fourth central bathroom.
Complete with every conceivable extra including hydronic heating, zoned air-conditioning, alarm, security intercom, spacious separate laundry, internal/external audio, drip system and huge double garage.
**To Inspect**
Please refer to the listed inspection times. If no inspection time is available or you are not able to make the listed time/s please click "Get in Touch" to request an Inspection Time or Contact Agent and register your interest.
**Please Note**
Open for Inspection times and property availability is subject to change without notice. We highly recommend registering for an inspection you are going to attend to avoid disappointment for cancellations. If you are registered for an inspection, you will be notified by SMS if the inspection is cancelled.
**Caution**
Marshall White has exclusive leasing rights to this property. We do not advertise on Gumtree, Facebook Marketplace or any other social media platforms. Please beware of scammers and apply only via the official advertising link using the Snug platform.
Enquire about this property
Request Appraisal
Welcome to Kooyong 3144
Median Rental Price
$800
Kooyong, located just 7 kilometres southeast of Melbourne’s CBD, is synonymous with prestige and exclusivity.














