Sold19 Netherlee Street, Glen Iris
Stunning Family Surrounds
Totally captivating inside and out, this picturesque period residence's unforgettable interior dimensions are more than matched by its beautiful garden and pool setting. In a coveted location, walking distance to some of Melbourne's finest schools, Central Park, village shops, and High street trams, its family appeal is immeasurable.
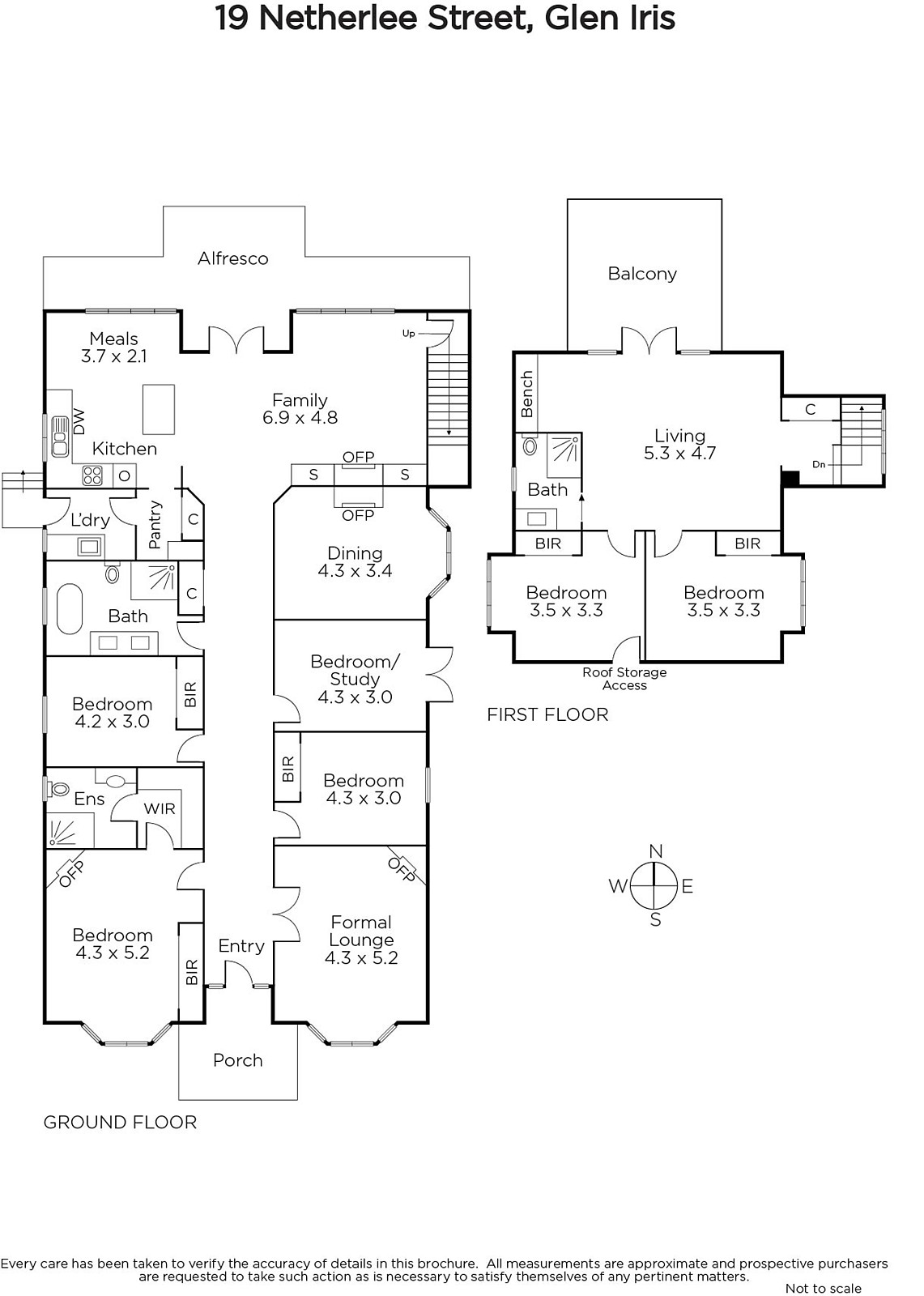
A picture perfect façade reveals equally attractive interior dimensions featuring high ceilings, plantation shutters and leadlight windows. Timber floors flow through the wide central hall to a refined sitting room with open fireplace and ornate ceiling, a spacious study and formal dining room with open fireplace. The gourmet European kitchen boasting stone benches, a butler's pantry and casual dining area and a light-filled living room with open fireplace open out to a landscaped north-facing private garden with solar heated pool. Exceptional family accommodation comprises the main bedroom with open fire, walk in robe and chic en-suite, two double bedrooms with built in robes and lavish bathroom with freestanding bath downstairs. In addition a sensational children's zone upstairs includes two spacious bedrooms with built in robes, a large retreat, covered north-facing balcony and stylish bathroom.
Simply irresistible, this glorious home also includes an alarm, ducted vacuum, laundry, garden shed, carport and auto gates. Land size: 718sqm (approx.)

















