Sold19 Gardiner Road, Hawthorn
An Inspired Architectural Design
This stylish Architect designed contemporary family home is enviably situated in an elevated position, with leafy outlooks across H.A. Smith Reserve in the highly regarded Scotch College Hill precinct. Surrounded by magnificent lush gardens with soaring mature trees, the home was cleverly designed by the Architect, Peter Crone, to take advantage of a large allotment with a gentle uphill slope to the north; furthermore, solid brick walls at the front of the house were successfully designed to minimise noise creating a tranquil living environment. Whilst the northern rear aspect and large strategically positioned windows flood the interior with plenty of natural light and deliver lovely garden vistas.
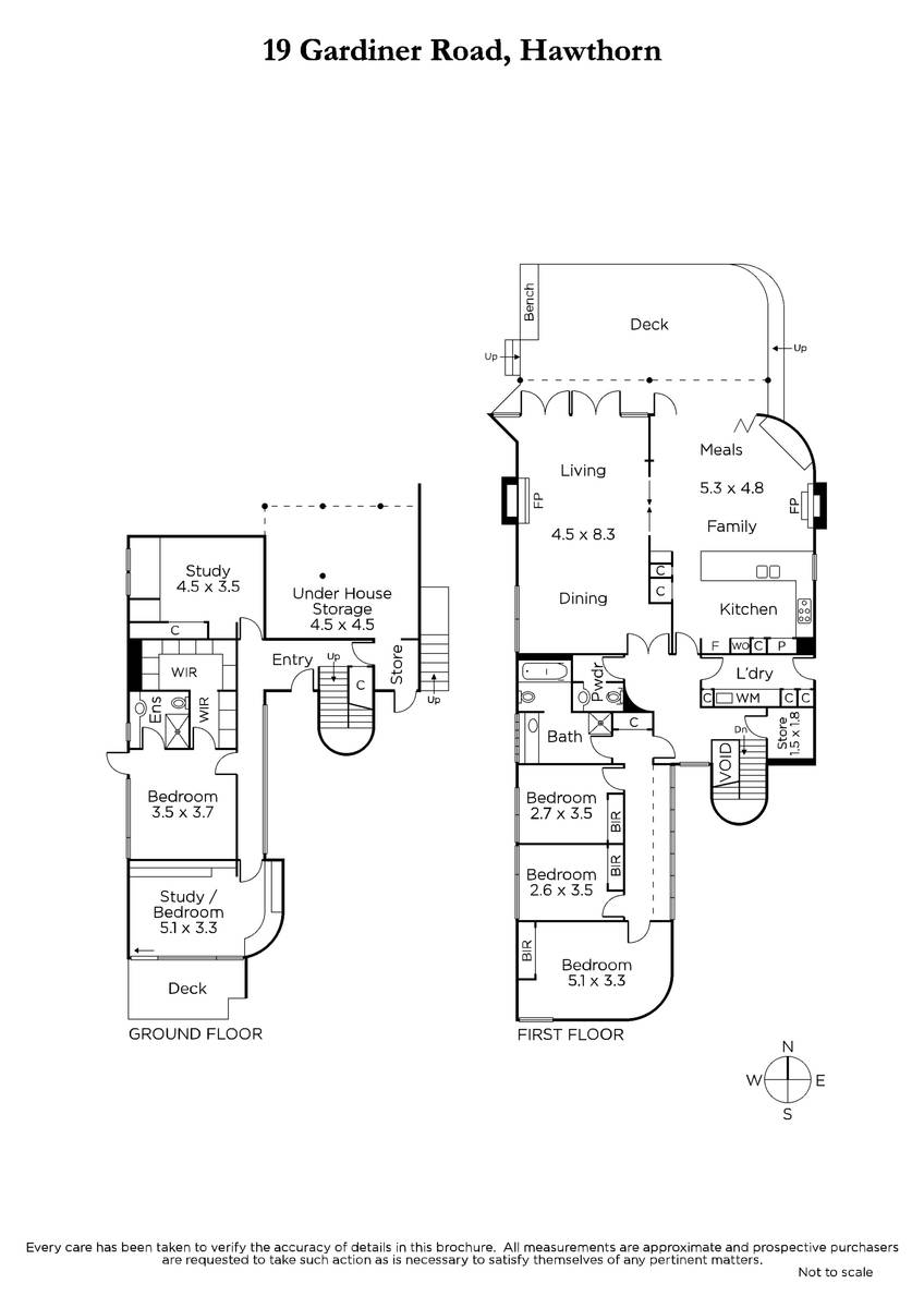
The accommodation over two levels offers outstanding zoned living areas comprising a ground floor entrance foyer, leading to the parent's area including the main bedroom with WIR and ensuite and study, plus 5th bedroom/additional study. The upper level features three bedrooms with BIRs, a family bathroom, a powder room, and laundry. Two northern living spaces include a formal sitting and dining room plus a casual family room incorporating a stylishly equipped kitchen with AEG appliances and stone bench-tops; both with bi-fold doors opening to a wide sun-drenched entertaining deck - ideal for entertaining small or large groups of family or friends. Other features include alarm, quality fixtures & fittings including Italian floor tiles, hydronic heating, Daikin R/C cooling, OFPs (living areas), ample storage including under house cellar, rainwater tank, and front carport with tandem off-street parking plus rear lane access.
Enhanced by its proximity to a range of shopping options including Kooyong and Glenferrie Road shops and cafes or the Tooronga Complex; plus Kooyong Parklands, Gardiners Creek trails, Hawthorn Hockey Club, and the Velodrome. Whilst providing easy access to an array of prestige schools or the CBD via CityLink access or public transport - all underpinning its family appeal, recreation possibilities, and convenience. Land size: 803sqm (approx.)
Enquire about this property
Request Appraisal
Welcome to Hawthorn 3122
Median House Price
$2,981,250
2 Bedrooms
$1,677,500
3 Bedrooms
$2,147,500
4 Bedrooms
$3,550,000
5 Bedrooms+
$6,271,425
Hawthorn, approximately 6 kilometres east of Melbourne’s CBD, is an affluent and vibrant suburb known for its rich history, beautiful parks, and prestigious educational institutions.






















