Sold19 Douglas Street, Malvern East
Enticing Gascoigne Estate Opportunity
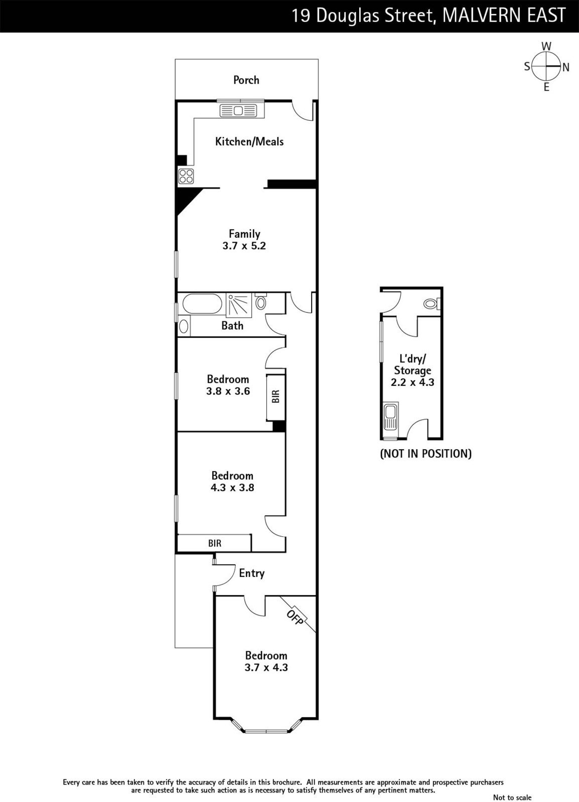
Enduring Edwardian allure and a coveted Gascoigne Estate address highlight the perennial appeal and exciting renovation potential offered by this classic solid brick residence's comfortable and well-proportioned dimensions (STCA). Soaring ceilings add wonderful scale to the L-shaped hallway, beautiful main bedroom or sitting room with bay window and open fireplace, two further double bedrooms with built in robes and a bathroom. The spacious light-filled living room and adjacent original kitchen with meals area opens to a private paved northwest facing garden courtyard with freestanding laundry/storage and 2nd toilet. In a tree-lined locale close to Malvern Primary and other schools, Waverley Rd shops and cafes, trams, trains and Central Park, it also includes RC/air-conditioning and off street parking.
Enquire about this property
Request Appraisal
Welcome to Malvern East 3145
Median House Price
$2,182,500
2 Bedrooms
$1,457,500
3 Bedrooms
$1,930,000
4 Bedrooms
$2,530,500
5 Bedrooms+
$2,962,500
Situated 12 kilometres southeast of Melbourne’s bustling CBD, Malvern East is a suburb renowned for its blend of family-friendly charm and cosmopolitan living.











