Sold19 Chatsworth Avenue, Brighton
Designer Luxury
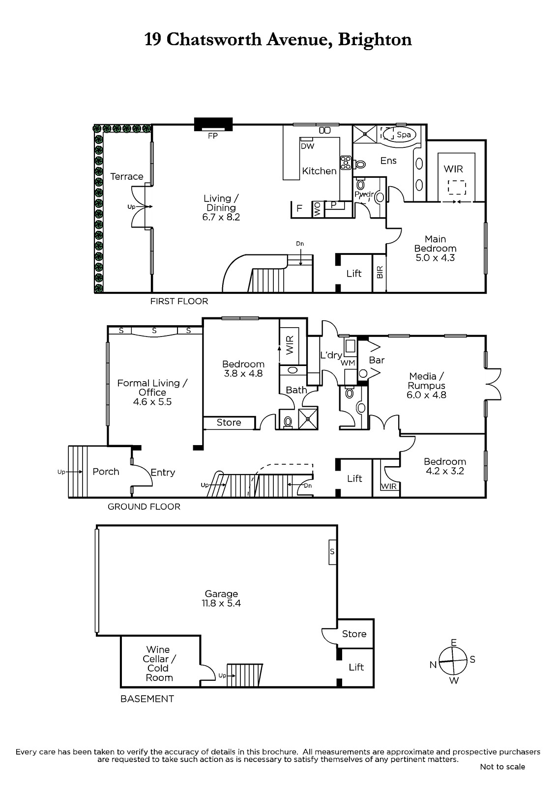
Absolutely stunning views of the Bay and City skyline are equally matched by the space, elegance and luxury appointments of this magnificent 3 bedroom residence in a prized position between the Golden Mile and only five homes from the bay. Showcasing an impressive array of contemporary design and opulence, it provides the most discerning buyer with everything a Bayside lifestyle offers. Masterly designed with living, dining, kitchen and balcony areas on the first floor to take in the spectacular views from every aspect, this contemporary home offers zoned living at its best. The kitchen is large and sumptuous with Caesarstone benchtops and Miele appliances. The expansive living and dining room features a gas open fire and of course, views, as does the north facing balcony that beckons al fresco breakfast, lunch, dinner and entertaining. The master bedroom is also upstairs with dressing room, exquisite travertine ensuite and Luxurious powder room completes the upstairs accommodation which can be accessed via the lift from the 4 car basement garage. A grand entrance to the ground floor leads to an imposing study that's big enough to be a home office and features custom built shelving and bookcases; a formal lounge with built-in bar that opens onto rear decked courtyard boasting an award winning traditional Japanese garden by Kihara Landscapes. To complete the ground floor 2 generous sized bedrooms with dressing rooms, one has its own ensuite while the other overlooks the garden; powder room and lavish laundry with loads of cupboard space. Exuding craftsmanship and quality with superior floorings, central heating and cooling, lift from garage to ground and first floors, climate controlled wine room and storage. Only metres from the foreshore, living by the beach doesn't get any better.
Enquire about this property
Request Appraisal
Welcome to Brighton 3186
Median House Price
$3,278,333
2 Bedrooms
$2,066,833
3 Bedrooms
$2,509,166
4 Bedrooms
$3,611,666
5 Bedrooms+
$4,742,934
Brighton, located just 11 kilometres southeast of Melbourne CBD, is synonymous with luxury and elegance in the real estate market.


























