Sold18 Campbell Grove, Hawthorn East
Surprisingly Spacious - Meticulously Maintained
1 of 5
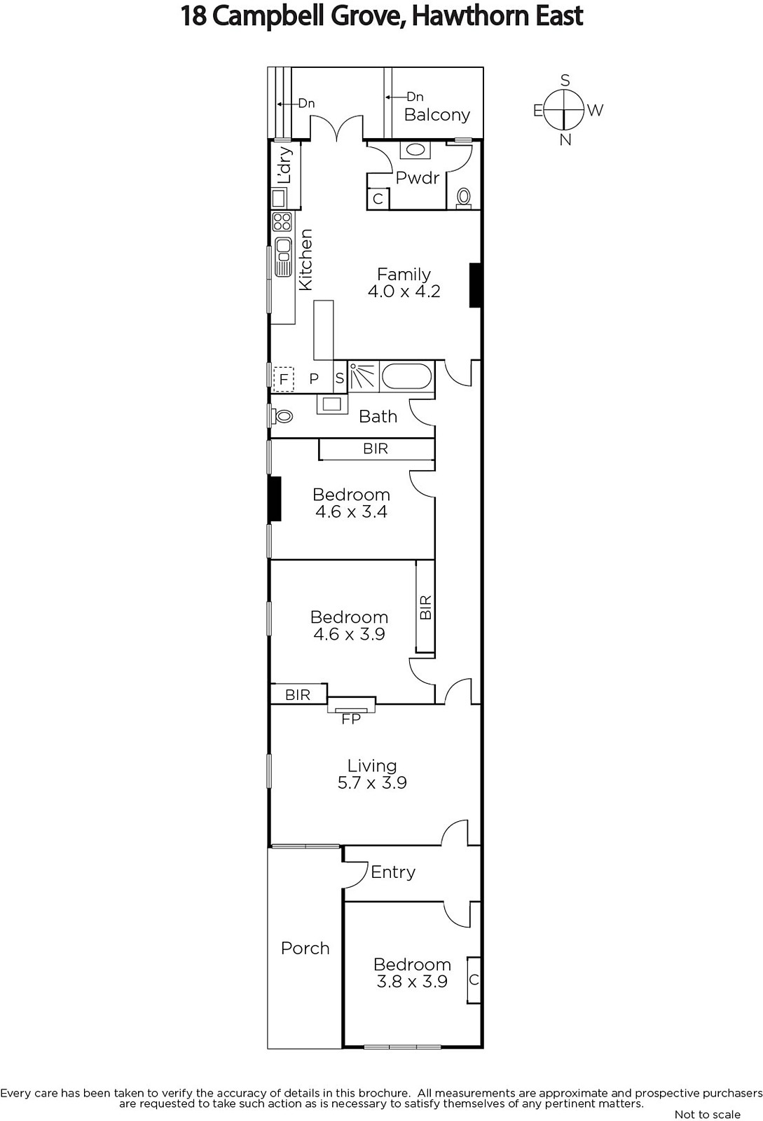
Spacious rooms bathed in natural light, an abundance of desirable authentic period features and off-street parking for two cars are hallmarks of this meticulously maintained and deceptively large (148sqm / 16 squares approx.) semi-detached Edwardian brick house, ideally situated in this quiet, meandering street just 300m from Riversdale Road tram.
Comprises: entrance hall, formal sitting room, three double bedrooms, spacious living and ding room, spotless kitchen, bathroom and laundry, carport off wide rear ROW.
Land size: 348sqm (approx.)









