Sold16 Wiltshire Drive, Kew
Funky Willsmere Loft Apartment
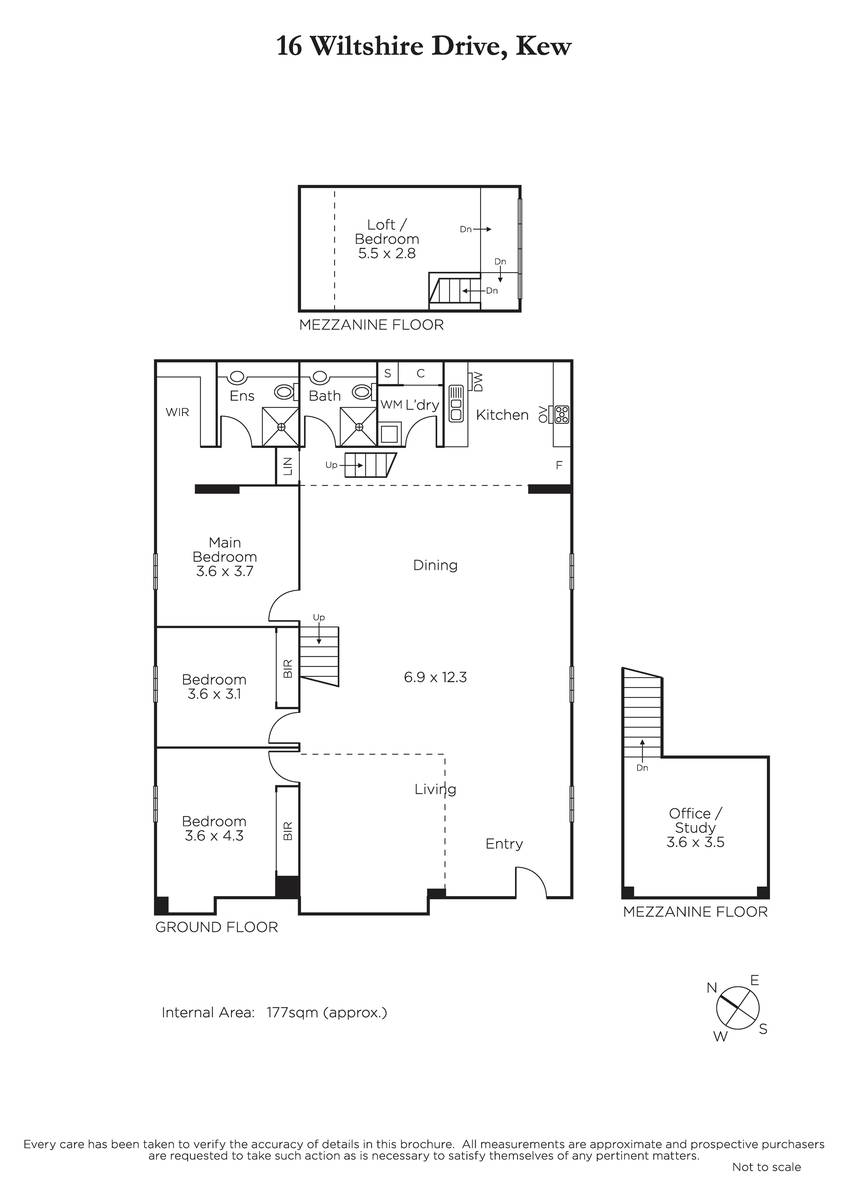
Exclusively situated in the historic, heritage protected Willsmere complex c1870 in one of Melbourne's most picturesque locations, surrounded by over 25 acres of botanical gardens and arguably one of the finest views of the City skyline from the surrounds. This funky, loft apartment is privately situated first floor where its striking interior, historic brick walls, vaulted ceilings with exposed timber beams, ceiling height windows and concrete floors through the generous open-plan living and dining spaces have instant appeal. Including a well-appointed kitchen equipped with Technika and Fisher & Paykel stainless steel appliances plus a mezzanine study/ and loft currently a fourth bedroom. Complemented by three bedrooms, main with a WIR and ensuite, a second bathroom with adjacent laundry.
Fortunate residents living in the Willsmere complex enjoy outstanding recreational amenities including an outdoor heated pool, tennis and basketball courts, gymnasium, putting green, two barbeque areas, library and a function room. Other features include intercom entry, high level security, ducted heating & cooling, two car spaces on title and visitor parking.
This exceptional apartment is tucked away near the highly regarded Studley Park precinct with access from Yarra Boulevard. Only minutes from Kew Junction shops cafes, restaurants and Leo's Fine Foods or Toscanos, Yarra River bushlands, public transport options plus easy access to schools with a school bus service; or the CBD via the Eastern Freeway.
Enquire about this property
Request Appraisal
Welcome to Kew 3101
Median House Price
$2,666,500
2 Bedrooms
$1,575,000
3 Bedrooms
$2,173,500
4 Bedrooms
$2,926,250
5 Bedrooms+
$4,580,000
Kew, positioned just 5 kilometres east of Melbourne's CBD, is renowned for its sophistication and elegance.













