Sold16 Staughton Road, Glen Iris
Unrivalled Design and Luxury
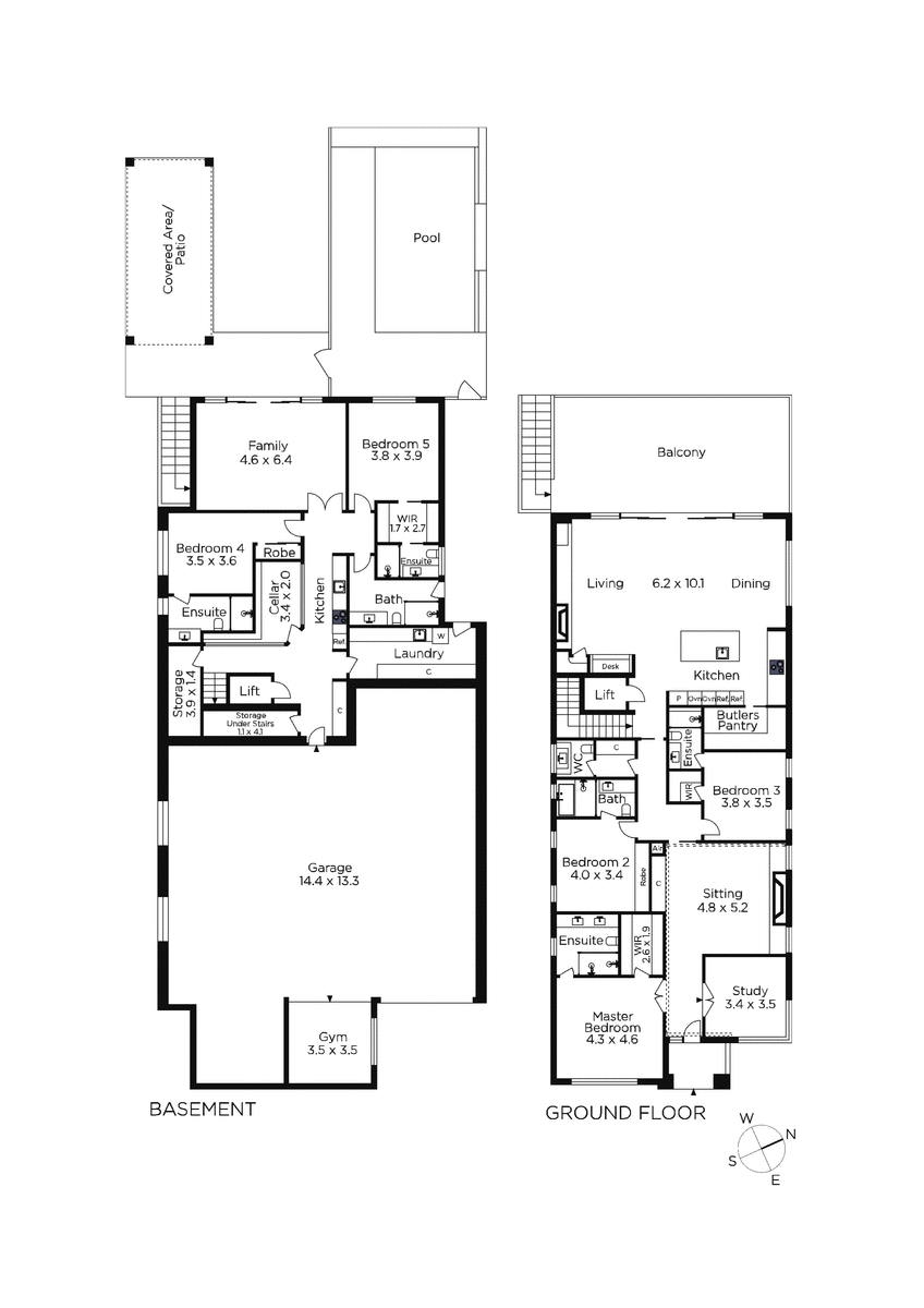
Spectacular in scale, sophistication, quality and level of finish, this remarkable architect designed 5-bedroom/6-bathroom residence’s breath-taking lift connected dimensions and glorious garden and pool surrounds establish a new benchmark in modern family luxury.
Framed by striking landscaped gardens, the interior spaces are defined by a palette of Venetian polished plaster, black stone and timber feature walls, slatted timber ceilings and oversized stone floor tiles. The gallery style reception hall beneath 4m ceilings with clerestory windows introduces an executive study overlooking the garden and an inviting sitting room with gas log fire. The voluminous open plan living and dining room includes a concealed study nook, gas log fire and a premium entertainer’s kitchen appointed with 4 Miele ovens, integrated Hafele fridge/freezer, stone benches and a full butler’s pantry. Stacking glass sliders extend the living and entertaining options out to a huge northwest facing undercover terrace offering wonderful city views. On the lower level served by a second gourmet kitchen and 6th bathroom, there is a wine cellar/tasting room and spacious rumpus/media room opening to the private northwest garden with Vergola covered terrace and picturesque heated pool with waterfall. Lavish family accommodation over two levels comprises five beautiful bedrooms all with stylish designer ensuites and walk in/built in robes including the deluxe ground level main bedroom with stunning ensuite and bespoke walk in robe.
Enviably positioned close to Burke Rd trams, shops and cafes, Gardiner station, Gardiner’s Creek parkland and schools, this masterpiece of contemporary design is comprehensively appointed with alarm, video intercom, RC/air-conditioning, remote blinds, double glazing, powder-room, laundry, irrigation, outdoor heaters, ample storage, gym and 6 car garage.
Enquire about this property
Request Appraisal
Welcome to Glen Iris 3146
Median House Price
$2,593,750
2 Bedrooms
$1,528,750
3 Bedrooms
$2,220,250
4 Bedrooms
$2,708,750
5 Bedrooms+
$3,823,500
Glen Iris, situated approximately 10 kilometres southeast of Melbourne's CBD, is a well-established and affluent suburb known for its leafy streets, spacious parks, and prestigious schools.



























