Sold16 Martin Street, South Melbourne
Designer Style, Desirable Precinct
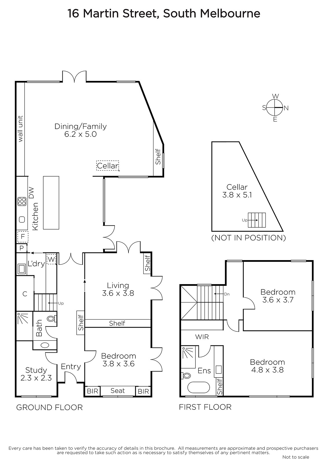
Located in the desirable Howe Crescent precinct and designed by Powell & Glenn Architects, this spectacular 4 year old contemporary residence delivers a wonderful sun-drenched, spacious and irresistibly stylish family environment idyllically situated near Albert Park Lake, Clarendon St shops, Albert Park Village, the light rail and schools.Featured in Houses magazine and the Design Files, the stunning interior dimensions with Tasmanian oak floors, black steel framed windows and 3 metre tongue and groove ceilings are bathed in northern light throughout. A versatile sitting or media room and the generous living and dining room with a curved concrete rendered feature wall and gourmet marble kitchen open to a picturesque private north-facing native garden with ti-tree covered pergola and off street parking. A second secluded BBQ courtyard covered by a sun-awning is ideal for year round outdoor dining. A light-filled bedroom with window seat and built in robe, fitted study and stylish bathroom are downstairs while the beautiful main bedroom with walk in robe and designer en suite with a freestanding bath and a third double bedroom are on the level above.Behind a warehouse style façade, this inviting home also includes alarm, CCTV, external shutters, solar panels, laundry, huge wine cellar, irrigation and side lane access.
Enquire about this property
Request Appraisal
Welcome to South Melbourne 3205
Median House Price
$1,700,000
2 Bedrooms
$1,252,500
3 Bedrooms
$1,905,000
4 Bedrooms
$2,767,500
South Melbourne, situated just 2 kilometres from the heart of Melbourne’s CBD, is a vibrant and historic suburb known for its unique blend of cultural heritage, contemporary living, and dynamic community atmosphere.






















