Sold15 Valentine Grove, Armadale
Prized Position, Unmissable Potential
This picturesque single level c1906 double fronted Edwardian residence delivers immediate appeal with the exciting prospect of adding contemporary style and convenience over time. The northeast allotment is the perfect site to further extend to your very own design (STCA). Positioned in a brilliant pocket of Armadale close to Malvern Central, Glenferrie Rd shops, restaurants, Malvern station and elite schools this is an opportunity not to be missed!
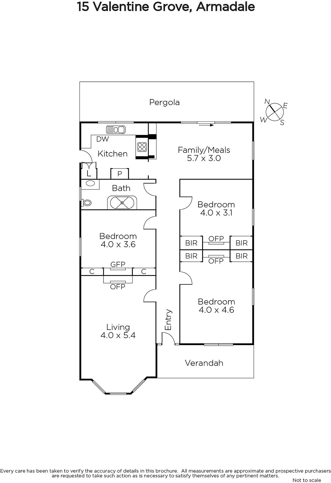
Behind the charming double fronted façade, high ceilings and Baltic pine floors open to the elegant sitting room with open fireplace and a 3rd bedroom/dining room. Timber floors continue through the inviting living and dining room served by a well-appointed kitchen.
Two further double bedrooms with open fires and built in robes and a pristine central bathroom complete the versatile floor-plan.
A gorgeous private northeast-facing garden with mature Fig Tree and vine-covered pergola is an idyllic oasis for al fresco entertaining.
Ideal to enjoy now as is, this charming home also includes an alarm system, water tank, garage/store-room and convenient off street parking. Land size: 435sqm (approx.)
Enquire about this property
Request Appraisal
Welcome to Armadale 3143
Median House Price
$2,564,250
2 Bedrooms
$1,779,250
3 Bedrooms
$2,341,250
4 Bedrooms
$4,775,000
Armadale, situated just 7 kilometres southeast of Melbourne’s CBD, is a charming suburb celebrated for its sophisticated blend of heritage and modernity, particularly in its real estate offerings.










