Sold14/96 Severn Street, Box Hill North
A Perfect Start For Investors or Owner-Occupiers
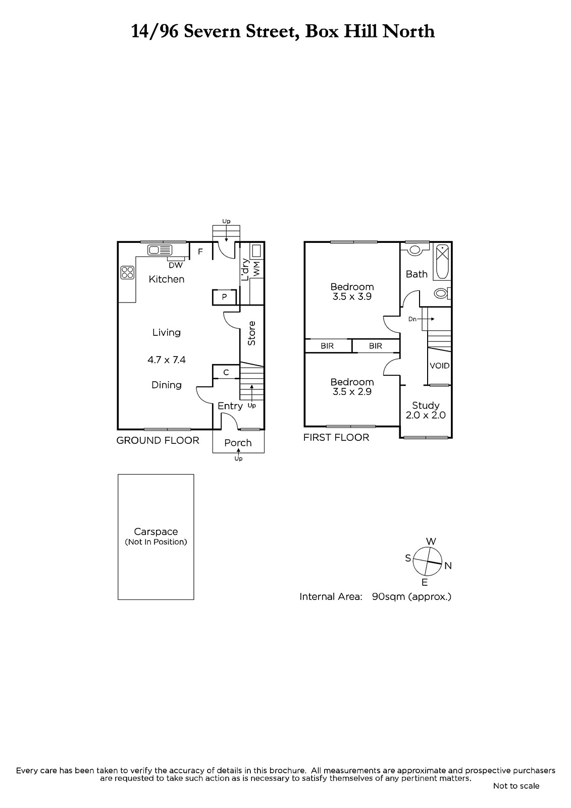
Surrounded by established gardens and privately situated at the rear of the "Indiana" complex this two-storey apartment has plenty to offer the new owners. Starting with a great location close to the many amenities offered by a prime Box Hill position; moments from Springfield Park and Bushy Creek trails, Box Hill Central or Westfield Doncaster for shopping and Box Hill Hospital and TAFE; plus a wide assortment of schools. Also well placed for easy access to the CBD via Eastern Freeway or public transport. Making it an excellent prospect for investors to enjoy rental returns, first home buyers or owner occupiers wanting a property with scope to update and modernise.
The interior features a generous open-plan living area with polished timber floors and a stylish timber and stainless steel kitchen with adjacent laundry leading to a large common garden area - ideal for outdoor summer relaxation. Plus two upstairs bedrooms with a study nook and bathroom. Other features include a R/C air conditioner, ample storage below the stairs and a designated carport.









