Sold13 Crest Avenue, Balwyn
Fine Family Living in the Reid Estate
Positioned in the prestigious Reid Estate of Deepdene, one of Melbourne's finest residential areas offers easy access to a myriad of sought-after private schools plus Deepdene or Whitehorse Road shopping and cafes, Balwyn Cinema, recreational facilities, parklands and public transport options. This impressive contemporary two-storey family residence in immaculate condition offers the new owner a comfortable home to enjoy, a renovation/extension project, or perhaps a luxury new home site (STCA) with its desirable 65 foot frontage appx.
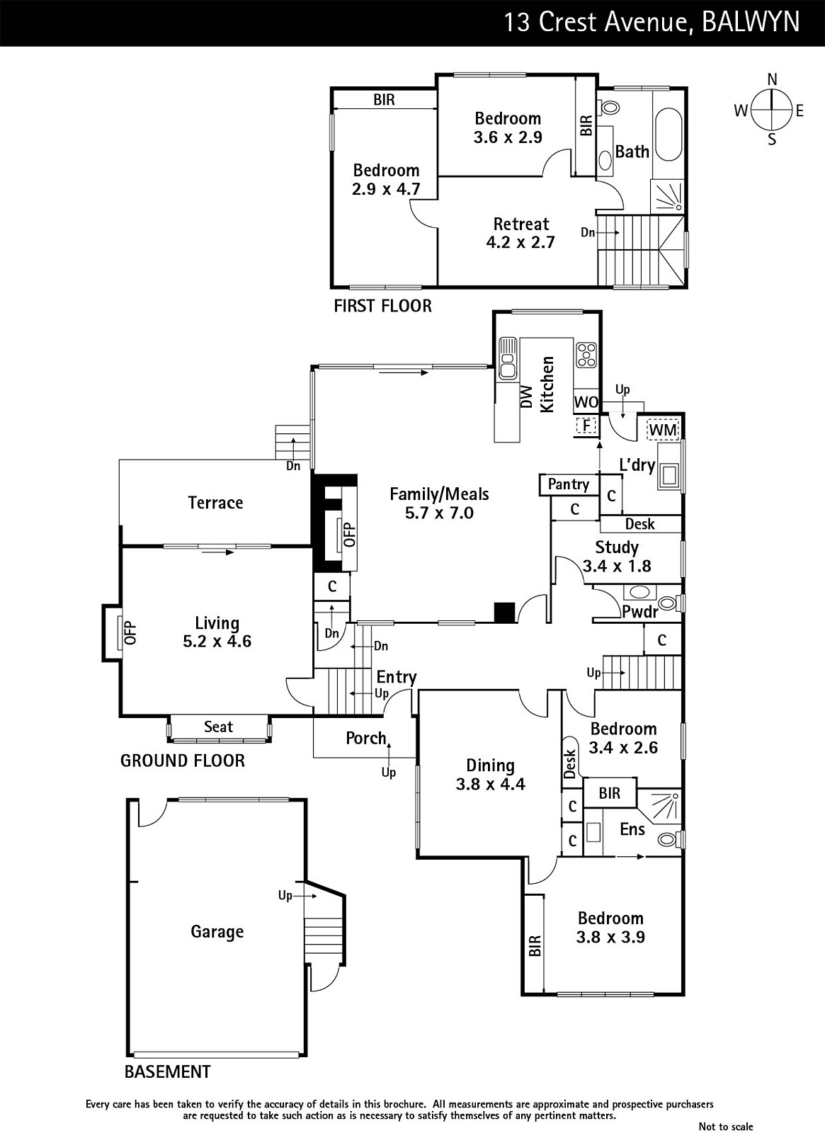
The home is highlighted by a preferred northern rear aspect with lush garden and features an entrance hall with stone floors flowing to a formal sitting room with OFP, bay window and doors to a sunny terrace; dining room, study, powder room and two downstairs bedrooms, main with WIR and ensuite. A generous family living and dining area including a well-appointed timber kitchen with quality appliances and adjoining laundry opens to a summer shaded alfresco area - perfect for relaxed dining and entertaining with family or friends. Complemented by an upstairs area with views to the northern ranges, a retreat or study area, two further bedrooms and a family bathroom. Other features of this superb family home include alarm, ducted heating, R/C air-conditioners, roof storage, remote double garage with secure internal access. Walking distance to Camberwell Girls & Boys Grammar, and close proximity to Belmont and Deepdene Parks.
Land size: 815sqm/8,773sqft approx
Enquire about this property
Request Appraisal
Welcome to Balwyn 3103
Median House Price
$2,889,000
2 Bedrooms
$2,246,799
3 Bedrooms
$2,483,334
4 Bedrooms
$2,785,667
5 Bedrooms+
$3,830,000
Balwyn, located about 10 kilometres east of Melbourne's CBD, is a suburb within the City of Boroondara known for its picturesque streets, grand Edwardian and Georgian homes, and high-quality lifestyle.














