Sold13/8 Cobden Street, Kew
Brand New Townhouse with Style and Convenience
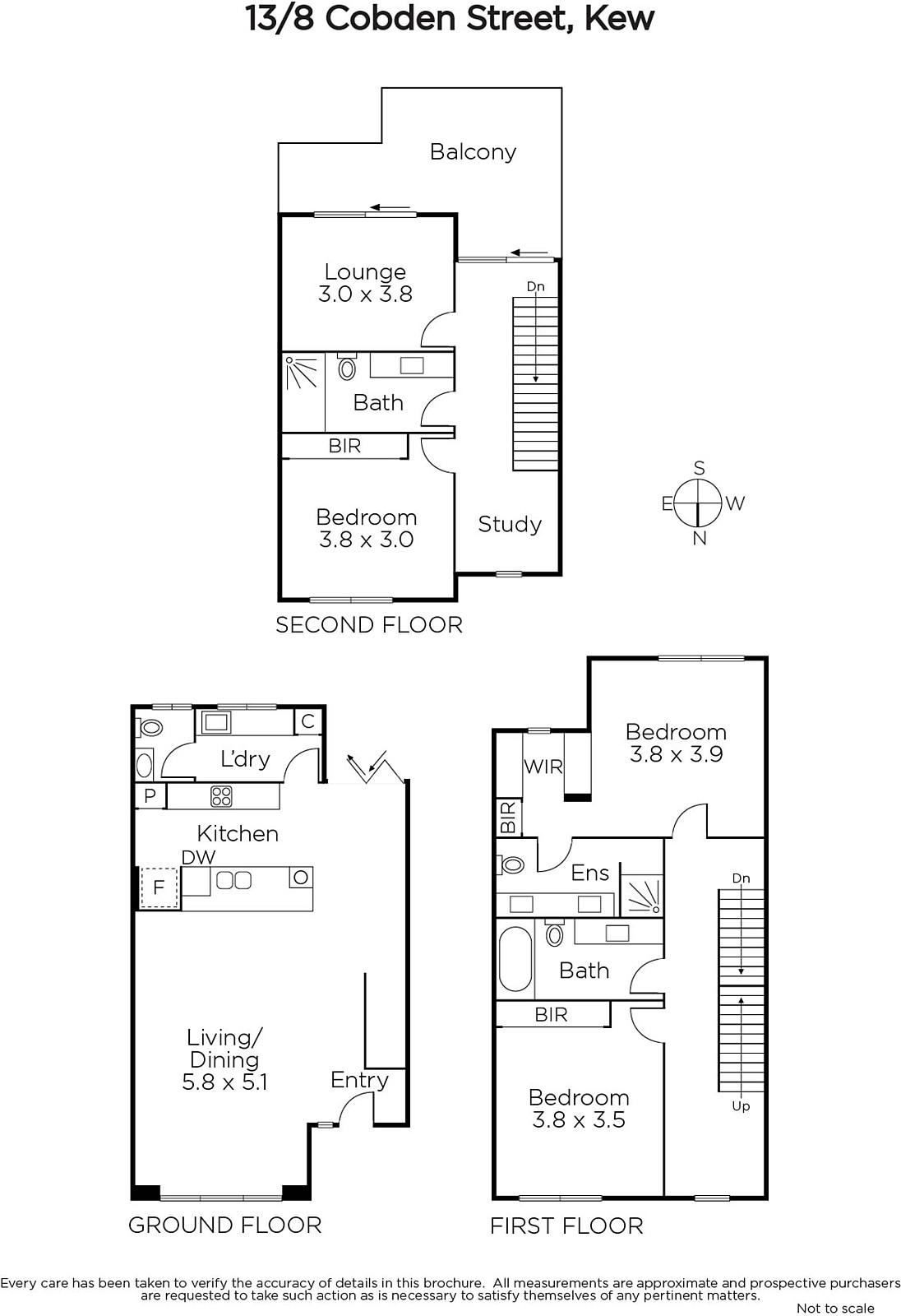
Located in the "Innova" complex this brand new, sophisticated and superbly appointed townhouse, designed by the renowned Architects, Peddle Thorpe is highlighted by a brilliant location moments from Glenferrie Road or Kew Junction shopping including Leo's Fine Foods, Toscanos, cafes, restaurants; with easy access to the Kew Recreation Centre, Eglinton Reserve, Yarra parklands and public transport options or the Eastern Freeway for travel to the CBD - all offering an idyllic oasis and backdrop to a busy inner-city lifestyle.
The spacious tri-level interior capitalises on a northern orientation to its living areas featuring floor-to-ceiling windows and an all-white decor delivering a light and bright, spacious interior. Featuring wide floor boards in the generous ground floor living and dining area which opens to a northern terrace and rear courtyard plus a sleek kitchen equipped with CaesarStone bench tops and quality Miele appliances, powder room and laundry. The second level has two bedrooms, main with WIR and fully tiled ensuite and family bathroom. An additional bedroom, bathroom, retreat/study & roof garden/terrace is situated on the third level. Other features include video intercom entry, ducted heating & cooling, fully-tiled bathrooms & laundry, new wool carpets, storage cage, secure auto basement parking for two cars. Total size 253sqm/27.2sq approx.
Enquire about this property
Request Appraisal
Welcome to Kew 3101
Median House Price
$2,666,500
2 Bedrooms
$1,575,000
3 Bedrooms
$2,173,500
4 Bedrooms
$2,926,250
5 Bedrooms+
$4,580,000
Kew, positioned just 5 kilometres east of Melbourne's CBD, is renowned for its sophistication and elegance.











