Sold12B North Road, Brighton
Inspection by Appointment
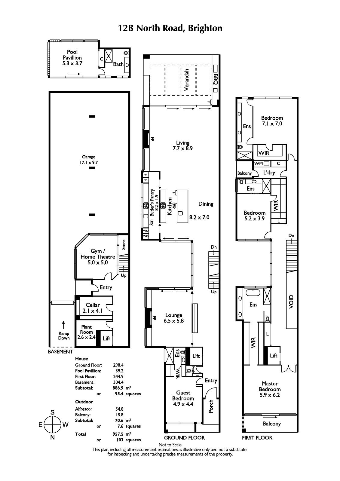
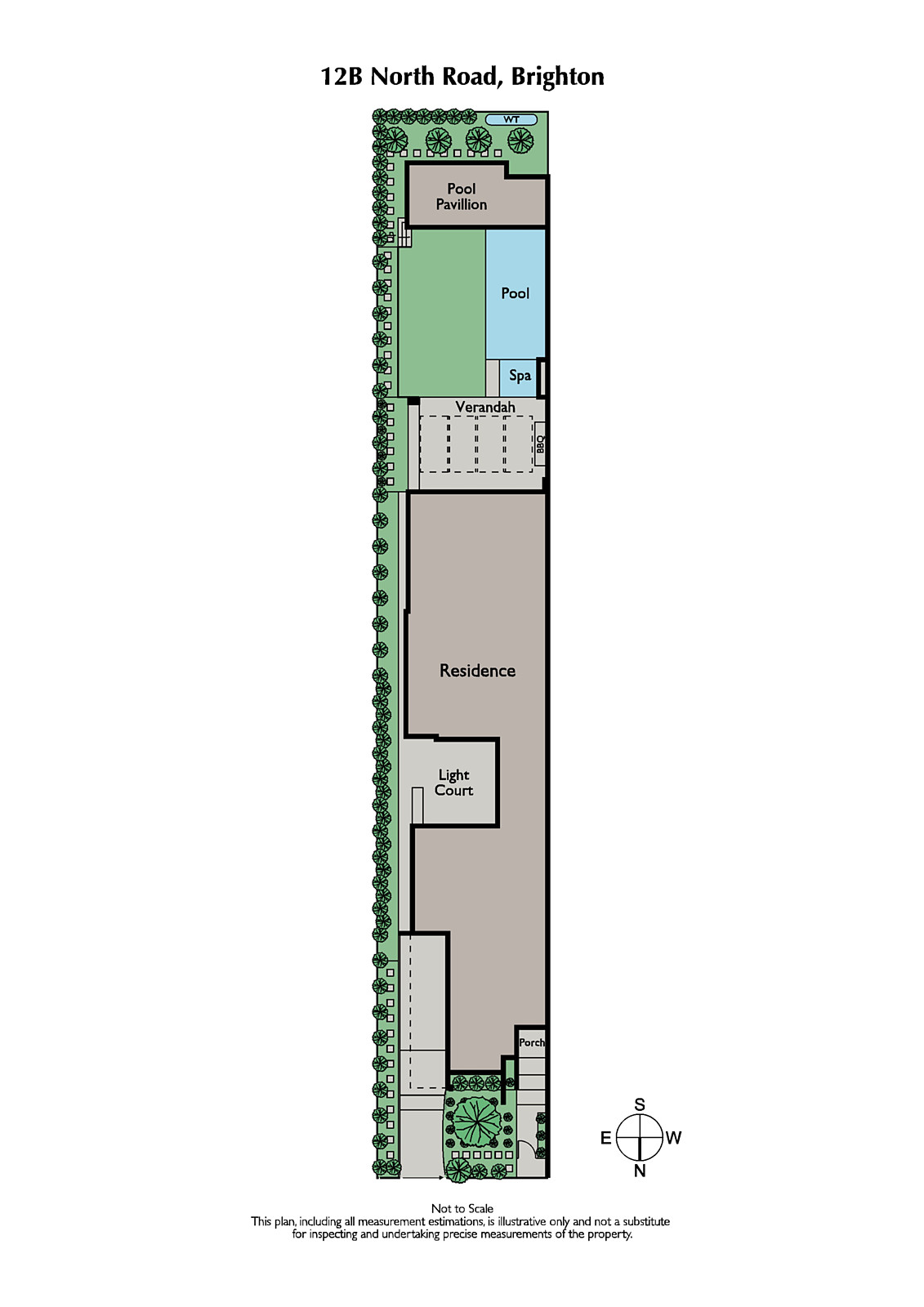
One of Brighton's best contemporary homes, metres from the beach. The vision of acclaimed SJB Andrew Parr, this is next level with fine design, exacting construction and resort-inspired indoor-outdoor living. The space and style is extraordinary with a no-expense-spared interior, three grand living zones, five bedrooms and five bathrooms, poolside pavilion/guest suite, lift, home theatre, temperature controlled walk in cellar and a six-car basement garage.
The vast family room is visionary with heated travertine floors, streamlined quartz hearth and gas log fireplace, whilst sliding doors leading to the high-end outdoor alfresco entertaining area with fully retractable louvres, gas heated pool and spa. Just as impressive is formal lounge and bar with gas log fireplace and access to a large internal courtyard. Incredible fit out shows in the sleek designer kitchen and large walk through butler's pantry three Gaggenau ovens, induction and gas cooktops, Liebherr fridge and stunning bronzed steel cabinetry and quartz bench tops.
This is a statement home with every luxury indulgence, Inspection is the only way to truly appreciate every feature, finish and this Golden Mile address.
In conjunction with RT Edgar - Sarah Case
Enquire about this property
Request Appraisal
Welcome to Brighton 3186
Median House Price
$3,278,333
2 Bedrooms
$2,066,833
3 Bedrooms
$2,509,166
4 Bedrooms
$3,611,666
5 Bedrooms+
$4,742,934
Brighton, located just 11 kilometres southeast of Melbourne CBD, is synonymous with luxury and elegance in the real estate market.





















