Sold10/37-51 Foley Street, Kew
Lifestyle and Comfort Abound
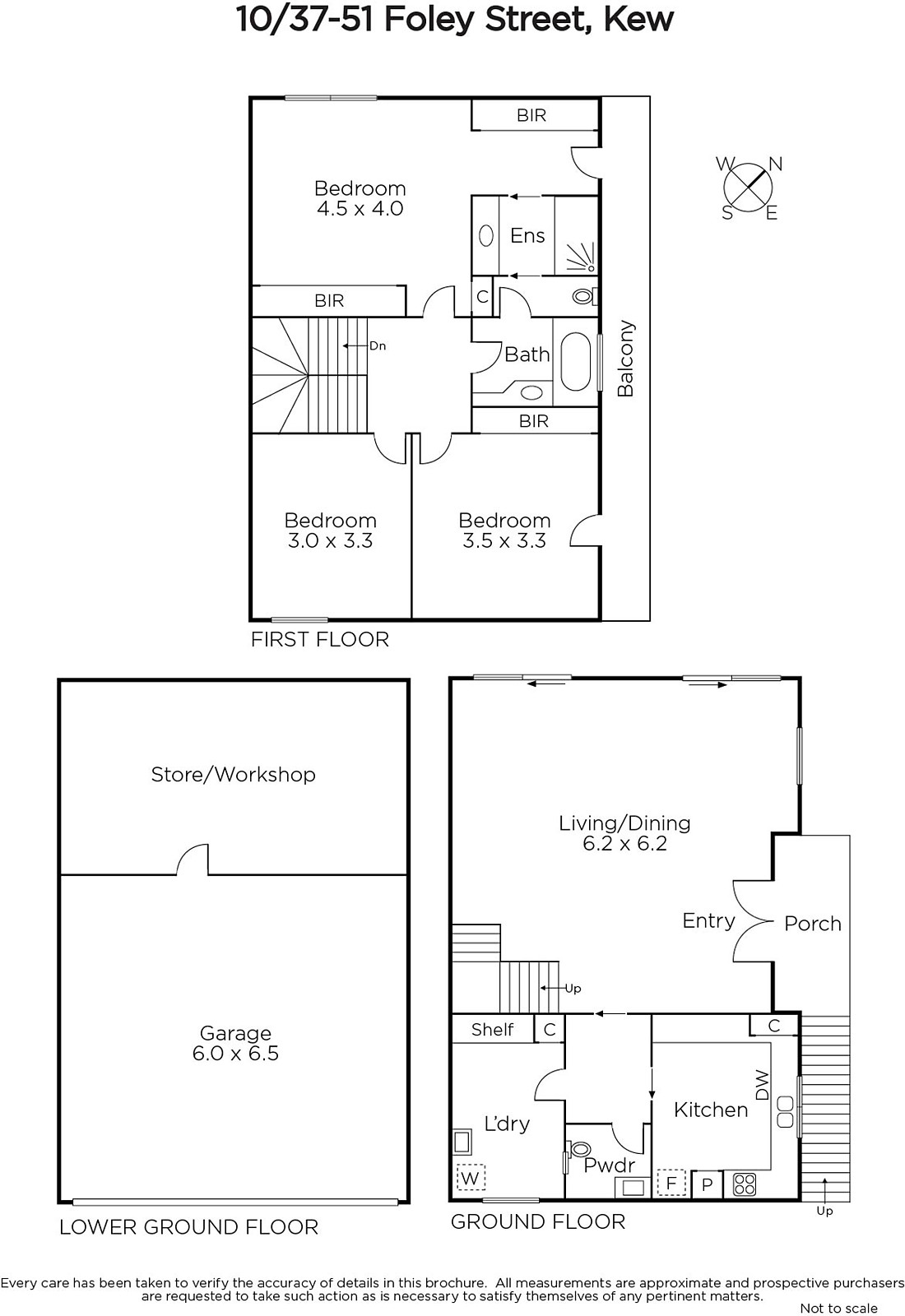
With enviable street frontage and nestled in a perfect position in the heart of Kew, this impressive renovated townhouse boasts an array of modern features, abundant space and resort-style living. Set over two levels and offering endless contemporary comfort with an expansive light-filled living/dining area downstairs, a large separate modern kitchen with stone benchtops and gas appliances, and ducted heating/cooling throughout. Ascend the solid timber staircase to three superb upstairs bedrooms (two with BIRs), highlighted by a large master with BIR and WIR, ensuite, dual-entry central bathroom and direct access to a charming outlook from the extensive front balcony. Outdoors, the property features a private, north-facing courtyard perfect for entertaining, and shared pool, BBQ and picnic facilities to enjoy within this relaxed, quiet complex. Extra features include a downstairs powder room, separate laundry, double auto garage with built-in storage and huge adjacent storage space. The superb Kew location simply can't be beaten, close to private schools, Kew Junction trams and buses, trains, Glenferrie Road, Victoria Street and easy access to the Eastern Freeway and city.
Enquire about this property
Request Appraisal
Welcome to Kew 3101
Median House Price
$2,666,500
2 Bedrooms
$1,575,000
3 Bedrooms
$2,173,500
4 Bedrooms
$2,926,250
5 Bedrooms+
$4,580,000
Kew, positioned just 5 kilometres east of Melbourne's CBD, is renowned for its sophistication and elegance.













