Sold1 Washington Avenue, Malvern East
Original Charm, Outstanding Potential
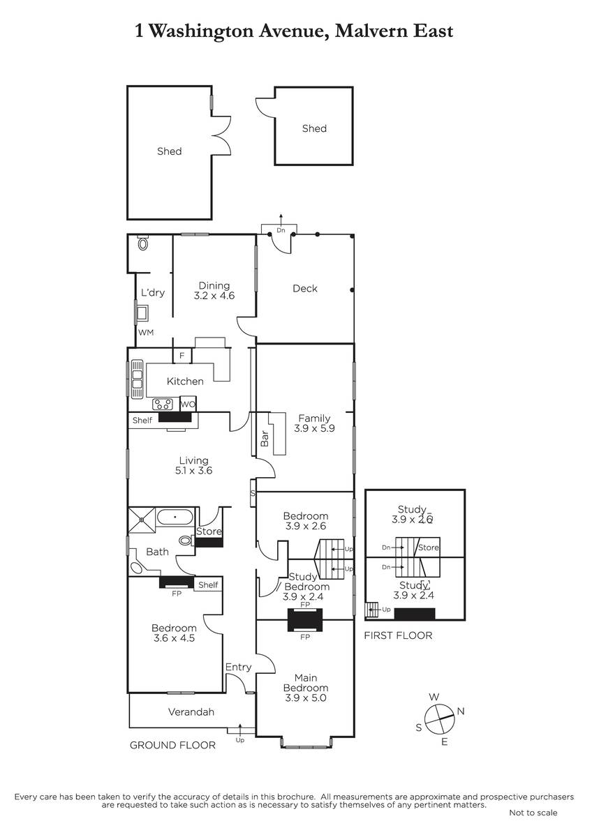
Impressively set within a deep private northwest facing 626sqm approx. allotment in a desirable tree-lined avenue, this charming single level Edwardian residence is perfectly poised for its next chapter with exciting options to renovate and extend (STCA).
Classic features including high ceilings, leadlight windows and ornate fretwork are highlighted in the wide central hall which flows through to an inviting sitting room and living/media room with a built-in bar. The well-equipped kitchen and separate dining room open to a large, covered deck overlooking the deep private garden with a workshop and shed. Two double bedrooms with fireplaces are accompanied by a third bedroom with mezzanine retreat, study with fireplace and mezzanine and a bathroom.
Enviably situated near Carnegie station and shops, Terminus Village, trams, Ardrie Park, schools and Chadstone, it includes ducted heating, air-conditioner, laundry, 2nd toilet, storeroom, roof storage and carport.
Enquire about this property
Request Appraisal
Welcome to Malvern East 3145
Median House Price
$2,043,333
2 Bedrooms
$1,475,499
3 Bedrooms
$1,827,167
4 Bedrooms
$2,407,333
5 Bedrooms+
$2,866,667
Situated 12 kilometres southeast of Melbourne’s bustling CBD, Malvern East is a suburb renowned for its blend of family-friendly charm and cosmopolitan living.
















