Sold1 Mount Martha Road, Mount Martha
Bay views and a short stroll to the beach
Pinch yourself…yes, this is real! A premier block of vacant land on offer with breath-taking Port Phillip Bay views and concept drawings previously approved for a stunning 3 bedroom + study contemporary property!
Boasting a commanding position on one of Mt Martha's best streets within walking distance of Safety beach and the Yacht club, here is a unique opportunity to build your dream coastal home nestled between the bush and the bay, capturing a magnificent coastline vista encompassing the nearby Marina and majestic Arthur's Seat. Enjoy the serenity of criss-crossing sailing boats on lazy summer afternoons and dramatic sunsets from the comfort of your balcony, with the boutique shops and cafes in Mt Martha village and the million-dollar Martha Cove development just minutes away.
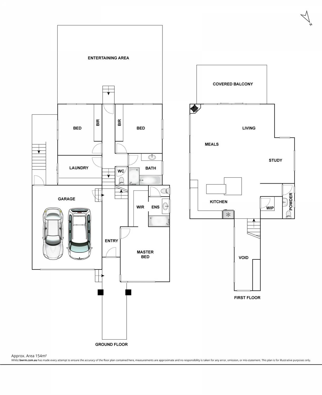
The original plans (as illustrated) have been specifically designed for the site and will soon have you living in a luxurious 2-storey residence featuring open-plan living on the upper level comprising a main living zone with fireplace, large balcony, study, gourmet kitchen with walk-in pantry, and powder room. Downstairs finds the master with walk-in robes & ensuite, 2 secondary bedrooms, family bathroom, laundry & double garage. Or alternatively create a new design to suit your family's personal requirements.
Vacant coastal blocks with views are becoming increasingly scarce in this prestige pocket of Mt Martha, at the gateway to many of the Mornington Peninsula's finest attractions including world class wineries, golf courses, pristine beaches and restaurants, and close to shops, schools and the Peninsula Link Freeway. A rare opportunity not to be missed, call Joel Hood or Adrian Calcedo today to arrange a site inspection.
Enquire about this property
Request Appraisal
Welcome to Mount Martha 3934
Median House Price
$1,455,167
2 Bedrooms
$1,245,000
3 Bedrooms
$1,180,000
4 Bedrooms
$1,533,334
5 Bedrooms+
$2,507,500
Mount Martha, situated approximately 60 kilometres southeast of Melbourne's CBD on the Mornington Peninsula, offers a mix of beachside charm and suburban comfort.











