Sold1 Dawson Avenue, Brighton
A Grand Dame on Brighton's Golden Mile with Approved Plans & Permits
An extremely rare proposition to acquire this wonderfully positioned 1920s home with approved plans and permits, neatly nestled on an impressive allotment measuring approximately 779sqm. Renovate, reconfigure or reimagine on Brighton's esteemed Golden Mile, move in and consider the possibilities, or design and build a luxurious brand new contemporary home (STCA) with every imaginable modern convenience, the choice is yours.
Approved plans and permits exist to build either two luxurious side by side townhouses or a boutique development of three contemporary house sized apartments.
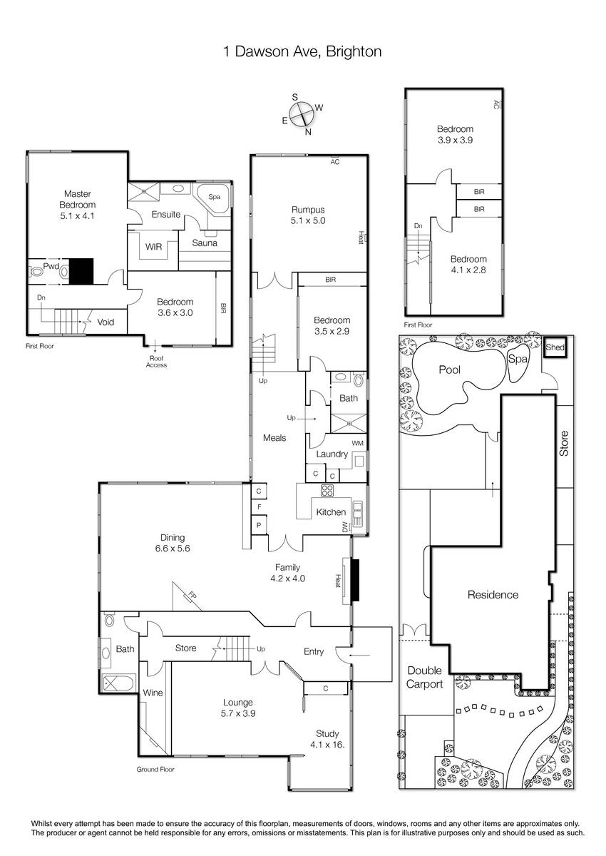
The existing residence offers a versatile floorplan introduced by a traditional entrance. A formal sitting room and sun room are complemented by a huge family room and rumpus room or third living zone opening to the pool and spa. A total of five bedrooms and three bathrooms include the vast main bedroom with spa ensuite, sauna and walk in robe. Outside parking and double carport offer additional convenience.
An impeccable location in a premium precinct puts a choice of excellent schools, boutique shopping and Bayside's prized dining scene within easy reach. Walk to a host of local reserves, parks, and sparkling Port Phillip Bay.
Enquire about this property
Request Appraisal
Welcome to Brighton 3186
Median House Price
$3,215,000
2 Bedrooms
$1,756,250
3 Bedrooms
$2,496,250
4 Bedrooms
$3,477,500
5 Bedrooms+
$5,047,500
Brighton, located just 11 kilometres southeast of Melbourne CBD, is synonymous with luxury and elegance in the real estate market.


















