Sold1 Berwick Street, Camberwell
Classic Tara Estate Edwardian c1910
Enviably located in the Tara Estate, one of Melbourne's premier blue-chip residential precincts, this character-laden Edwardian semi-detached home is just a few minutes walk from Camberwell's cafes, shops, railway station, Burke Road trams and Read Garden. Some of Melbourne's best schools, the popular Camberwell market and the Rivoli Cinema are all close by.
Set behind a picket fence in a quiet tree-lined street, boasting a generous garden allotment with mature trees, this immaculately presented period home is loaded with character throughout its traditional rooms and modern rear extension.
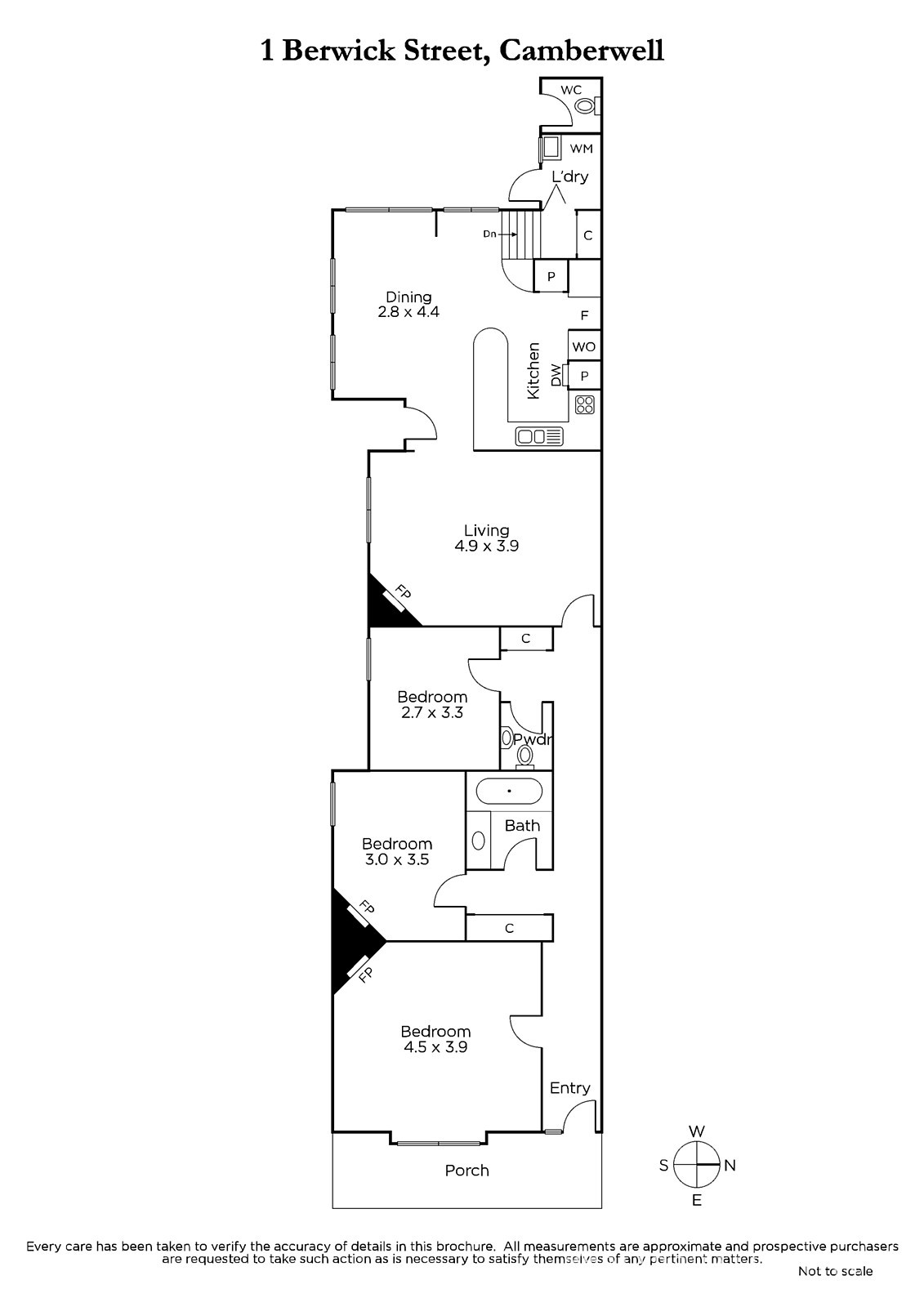
Highlights include heritage colours, beautiful coloured leadlight entrance, timber fretwork trimmed verandah, hallway arch and polished floorboards. The interior features a Baltic pine hallway flanked by 3 bedrooms, a family bathroom and powder room, leading through to a generous full-width living room with adjoining dining room and open-plan well-equipped kitchen with superb timber bench top and full-height windows overlooking a brick paved alfresco area and leafy private garden, ideal for outdoor entertaining and relaxation.
Other attributes include a separate laundry and external WC, ducted heating, OFP's, R/C air-conditioners (living room and main bedroom), garden shed and off-street parking for 2 vehicles.
Enquire about this property
Request Appraisal
Welcome to Camberwell 3124
Median House Price
$2,605,000
2 Bedrooms
$1,521,000
3 Bedrooms
$2,244,500
4 Bedrooms
$2,830,166
5 Bedrooms+
$3,506,250
Camberwell, located just 9 kilometres east of Melbourne's CBD, stands out as a prominent suburb in the real estate market, renowned for its scenic, tree-lined streets and heritage-rich architecture.














