Sold1/8 Palmerston Crescent, Frankston South
"Quiet location close to shops and beach"
*INSPECT ANYTIME BY APPOINTMENT*
What a place to start out in or downsize to! Cherished by the same owners for over 30 years this 3-bedroom BV beauty boasts a brilliant location in a prestige neighbourhood just a stroll to the Norman Avenue shops, the peaceful Sweetwater Creek Nature Reserve, transport and Frankston's award-winning beaches.
At the front of only two on the block with an inactive body corporate this immaculate home sits on 406m2 (approx.) and will impress with a neat front garden & entry porch, pet-friendly side garden, single lock up garage and a wonderfully private courtyard accessed through sliding doors, the perfect spot to relax or entertain.
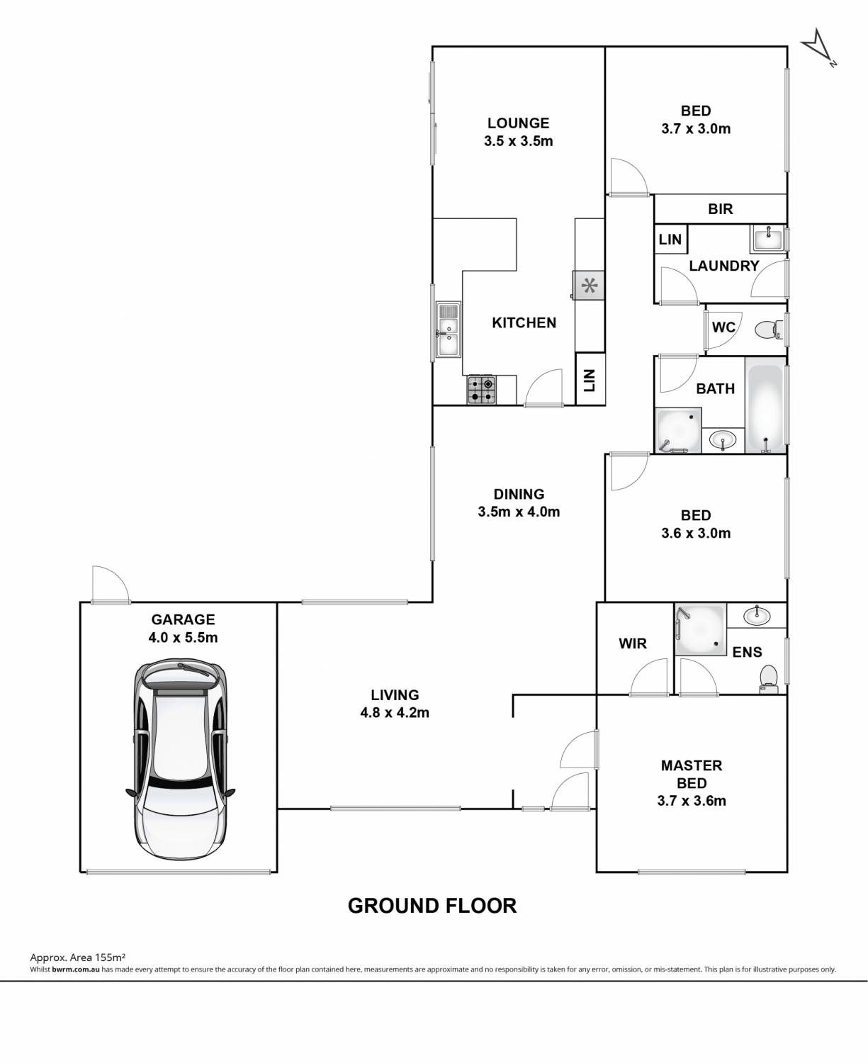
Inside a perfect single-level floorplan ticks all the boxes offering spacious formal living & dining, a generous, light-filled timber kitchen equipped with spotless appliances & adjoining casual meals area, master with ensuite and large walk-in robe, and 2 double bedrooms to the rear, one with built-in robes, both served by a full family bathroom with separate WC.
Gas ducted heating, an A/C unit in the kitchen, ceiling fan in the dining room, linen press and laundry complete the package.
Meticulously cared-for, low-maintenance and in the coveted Frankston High School Zone, this warm and welcoming home enjoys a sunny northern aspect and is simply perfect for young families, empty nesters or investors. Don't delay, call Joel Hood or Adrian Calcedo today to arrange an inspection.
Enquire about this property
Request Appraisal
Welcome to Frankston South 3199
Median House Price
$1,225,000
2 Bedrooms
$840,000
3 Bedrooms
$1,065,000
4 Bedrooms
$1,430,000
5 Bedrooms+
$1,730,000
Frankston South, about 45 kilometres southeast of Melbourne, is a leafy and peaceful suburb characterised by its large properties and natural surroundings.





























