Sold1/6 Hope Street, Glen Iris
Ultimate Low-Maintenance Living
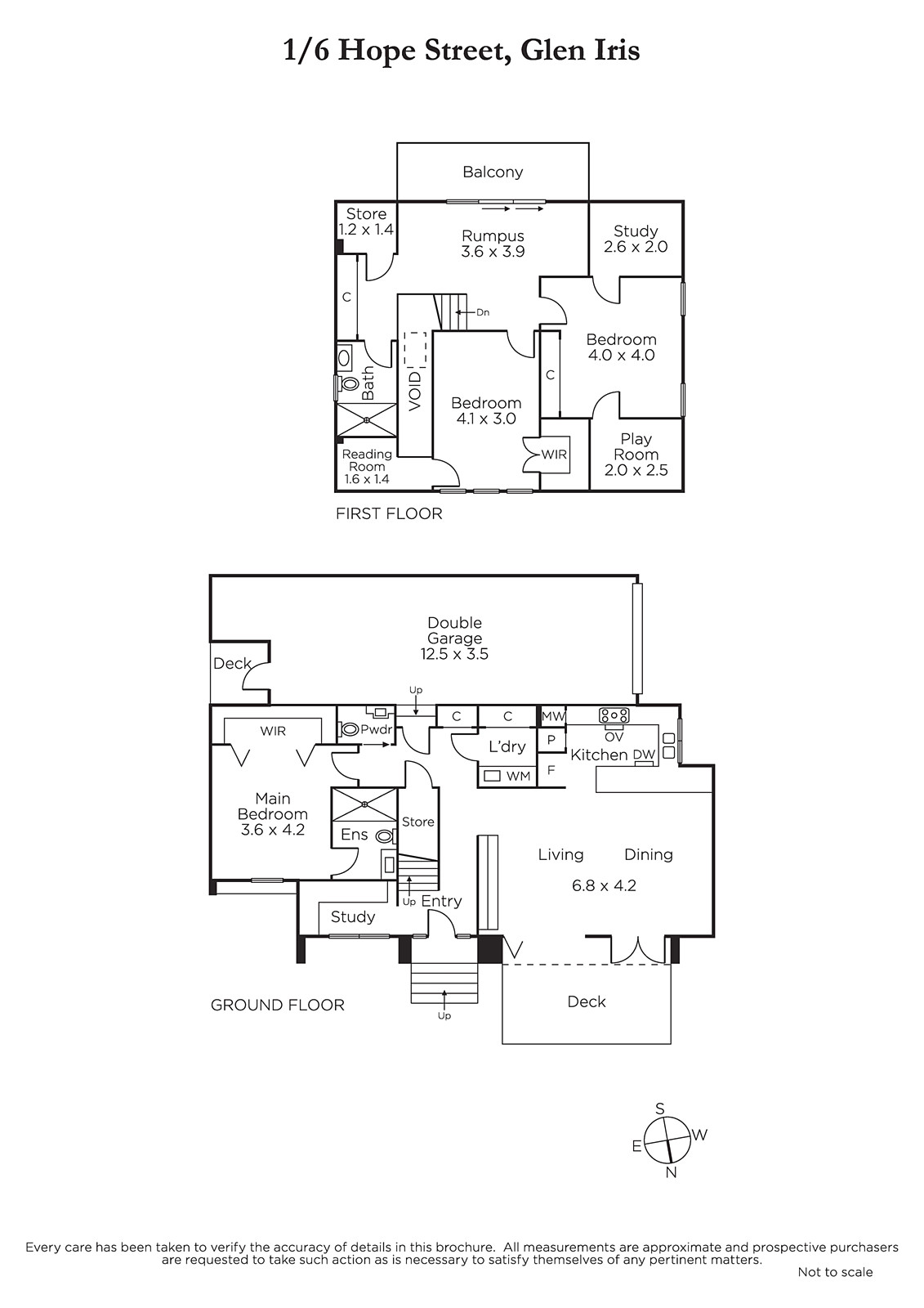
Behind its own street frontage is this stunning North facing 3 bedroom town residence with fabulous outdoor entertainment area ideally located close to leading schools such as Korowa and Sacre Coeur, transport and walking distance to Central Park. Comprising master suite with WIR and ensuite, study alcove, powder room, fully equipped open plan kitchen with expansive living/dining, stepping out to a large entertainment deck and landscaped gardens. Upstairs are two further double bedrooms (one with study and the other with reading nook), lounge retreat and large family bathroom. Additional features include: double glazing, hydronic heating, zoned air conditioning, ducted vacuum, ample storage, separate laundry and two car garage.
Enquire about this property
Request Appraisal
Welcome to Glen Iris 3146
Median House Price
$2,417,833
2 Bedrooms
$1,536,000
3 Bedrooms
$2,116,749
4 Bedrooms
$2,589,166
5 Bedrooms+
$3,220,667
Glen Iris, situated approximately 10 kilometres southeast of Melbourne's CBD, is a well-established and affluent suburb known for its leafy streets, spacious parks, and prestigious schools.




















