Sold98 Well Street, Brighton
Excellence and Innovation Close to Church Street
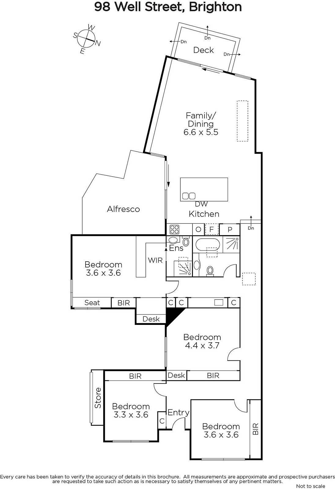
Single-level design and a central location are perfect partners for easy Brighton living. Outstanding architect-designed renovation has transformed this home into a light-filled private hideaway. The superb use of space is exceptional, and the end result is easy living in a tranquil setting. Four bedrooms and a study, a large family room and three outdoor living areas are at the heart of this stylish home. Fine design shows in the parents' retreat, featuring a north-facing study alcove, window seat and ensuite bathroom. Natural light fills every room, and the inclusion of extensive storage enhances every area. Impressive family room opens out to two decks and garden space, and features custom-designed joinery, timber floors and plenty of room for entertaining. Precision planning shows in the kitchen, with a stone island bench, garden and deck views, and contemporary lighting. Functionality and a quality fitout make this magnificent. Excellent landscaping includes a raised garden bed for vegetables and herbs, there's play space and outdoor storage options. Move in and appreciate having automatic gates, intercom entry, original double-brick construction, and all-weather outdoor living. Metres to Church Street's shops and cafes, easy walk to many schools, and close to Middle Brighton station.
Enquire about this property
Request Appraisal
Welcome to Brighton 3186
Median House Price
$3,278,333
2 Bedrooms
$2,066,833
3 Bedrooms
$2,509,166
4 Bedrooms
$3,611,666
5 Bedrooms+
$4,742,934
Brighton, located just 11 kilometres southeast of Melbourne CBD, is synonymous with luxury and elegance in the real estate market.












