Sold96 Adeney Avenue, Kew
Inspired Design Opposite Victoria Park
Inspections strictly by private appointment only. Please contact the listing agent to schedule a time.
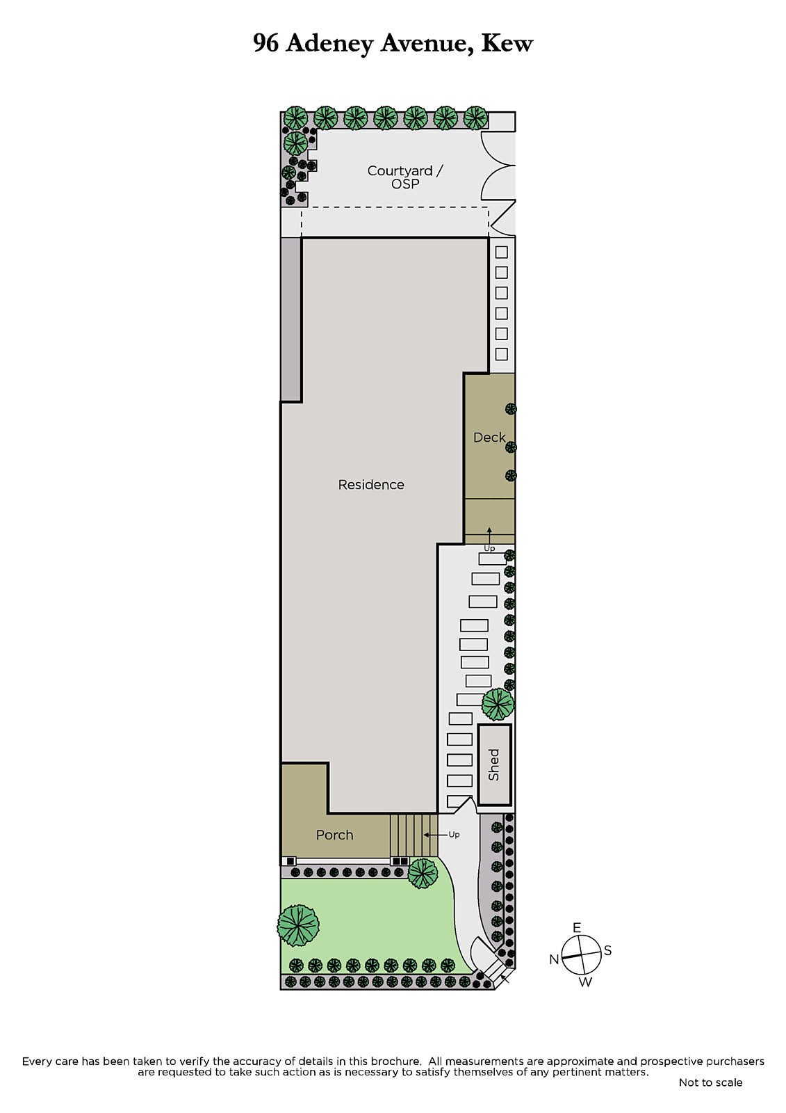
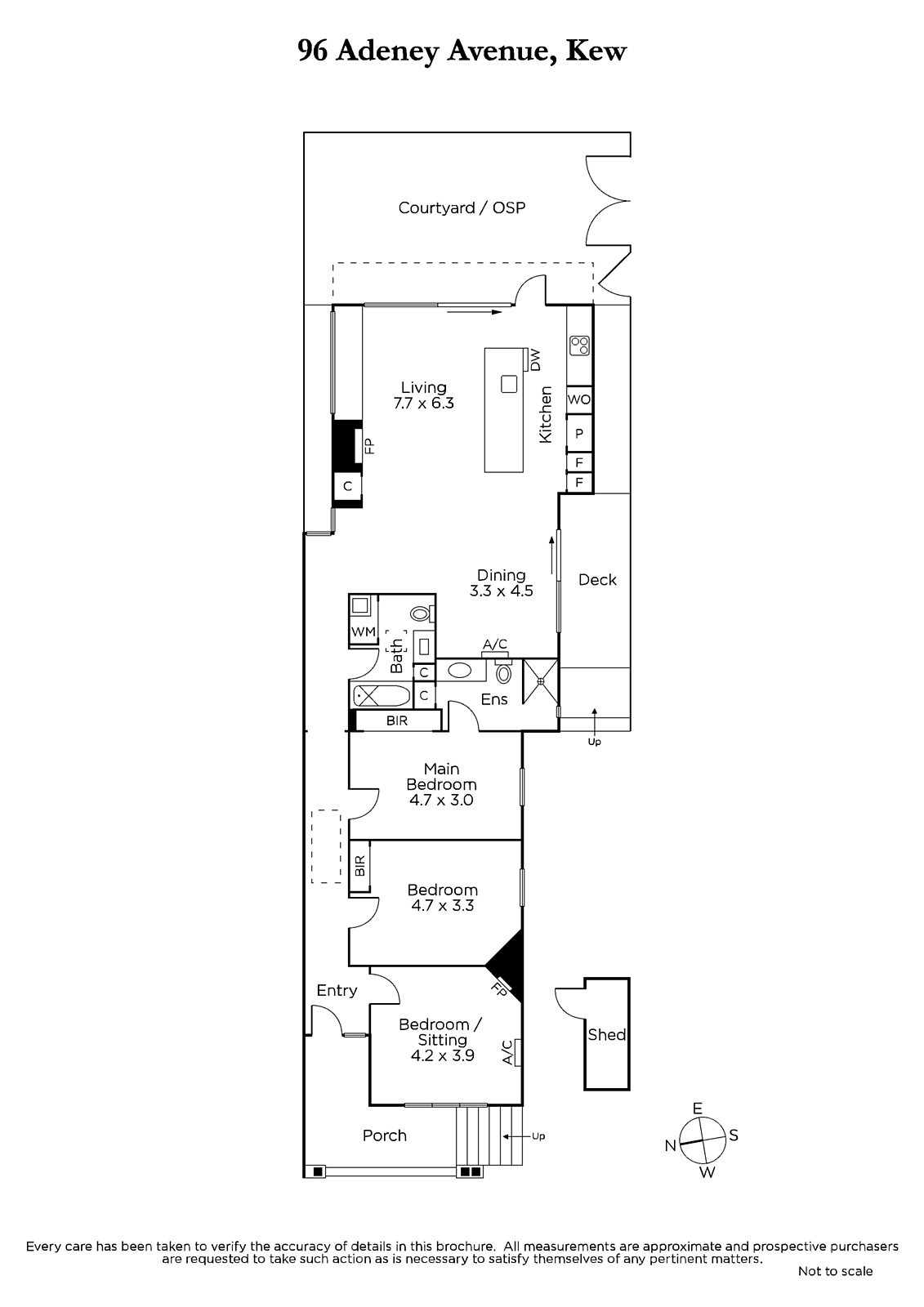
Completed only 4 years ago, the architecturally inspired transformation of this charming period residence has resulted in an absolutely stunning, spacious and supremely stylish single level domain directly opposite Victoria Park.
The classic high ceilings are complemented by solid American oak floors through a sky-lit hall leading to a gorgeous bedroom or sitting room with open fire, second bedroom with built in robe, a stylish bathroom and the beautiful main bedroom with built in robe and designer en suite. The 3m ceilings continue through the streamlined and sun-drenched extension featuring bespoke joinery and full height black steel framed windows and doors fitted with motorized blinds. An expansive open plan living and dining area, it is appointed with a gas fire and sleek gourmet kitchen featuring Carrara marble benches, V-Zug oven and cooktop and two integrated Miele fridges/freezer. The dining area opens to a side courtyard while a huge glass slider connects the living to a captivating private landscaped northeast garden offering secure off street parking via Campbell St.
Desirably situated close to High St trams, Harp Village, Kew Junction and a range of schools, it also includes double glazing, Euro-laundry, ample storage and irrigation.
Enquire about this property
Request Appraisal
Welcome to Kew 3101
Median House Price
$2,666,500
2 Bedrooms
$1,575,000
3 Bedrooms
$2,173,500
4 Bedrooms
$2,926,250
5 Bedrooms+
$4,580,000
Kew, positioned just 5 kilometres east of Melbourne's CBD, is renowned for its sophistication and elegance.


















