Sold90 Highfield Road, Canterbury
Peerless Family Surrounds
The evocative original features of this captivating c1910 Edwardian residence beautifully express the elegance and grandeur of the era while a brilliant renovation and extension delivers outstanding 21st century style, space and family functionality.
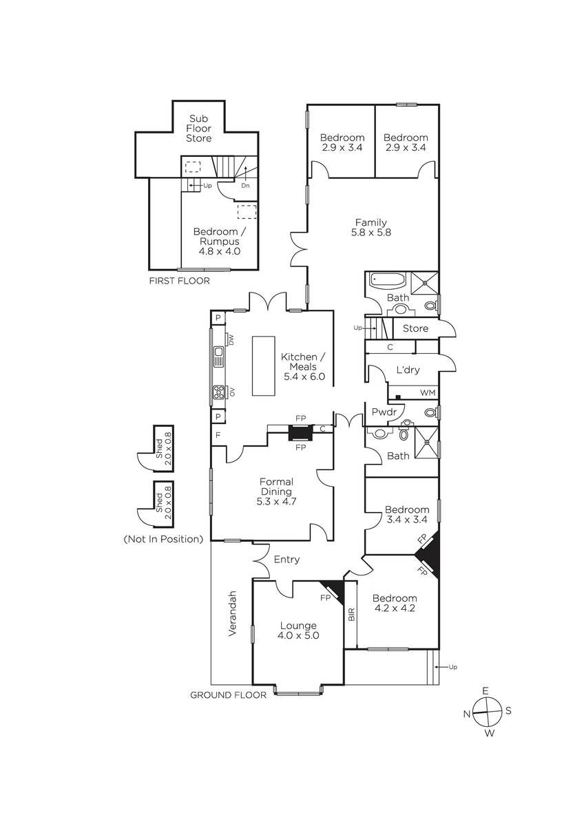
Majestically set within picturesque, landscaped garden surrounds, a wide verandah introduces interior spaces brimming with period features including high ornate ceilings, leadlight windows, decorative fretwork and Baltic pine floors. The wide L-shaped hall with a timber lined ceiling leads to a glorious sitting room with pressed metal ceiling and fireplace and a magnificent formal dining room with original timber ceiling and fireplace. Oak floors flow through the family dining area with fireplace and stunning gourmet kitchen boasting stone benches and Ilve appliances. Vaulted ceilings add to the scale of the generous living room opening through French doors to the deep, entirely private leafy northeast garden with a large entertaining deck. Beneath an original timber ceiling, the gorgeous main bedroom with fireplace and built in robe is matched by a second bedroom with fireplace, two additional bedrooms, two stylish bathrooms and a spacious upstairs rumpus or 5th bedroom.
Idyllically positioned close to Maling Rd, Canterbury station, Riversdale Rd trams, Highfield Park and great schools, it includes an alarm, security intercom, ducted heating/cooling, powder-room, laundry, roof storage and large double garage accessed from rear lane. Land size: 702sqm approx.
Enquire about this property
Request Appraisal
Welcome to Canterbury 3126
Median House Price
$3,775,000
3 Bedrooms
$2,489,000
4 Bedrooms
$3,696,250
5 Bedrooms+
$4,590,000
Canterbury, 10 kilometres east of Melbourne's CBD, radiates exclusivity and prestige. This esteemed suburb is renowned for the picturesque Canterbury Road, lined with majestic trees, and the charming Maling Road shopping village.






















