Sold9 Victor Avenue, Kew
Step up to an Elegant Kew Lifestyle
Step inside and be captivated by the ambience and elegant interior of this impressive two-storey family residence surrounded by classic, neatly maintained gardens and boasting a prominent, elevated position. It is enviably situated in one of Kew's finest leafy pockets minutes from Kew, Camberwell and Balwyn shopping options, parklands and the Outer Circle trails. With close proximity to several of Melbourne's sought-after private and public schools, transport and quick access to the Eastern Freeway or the CBD.
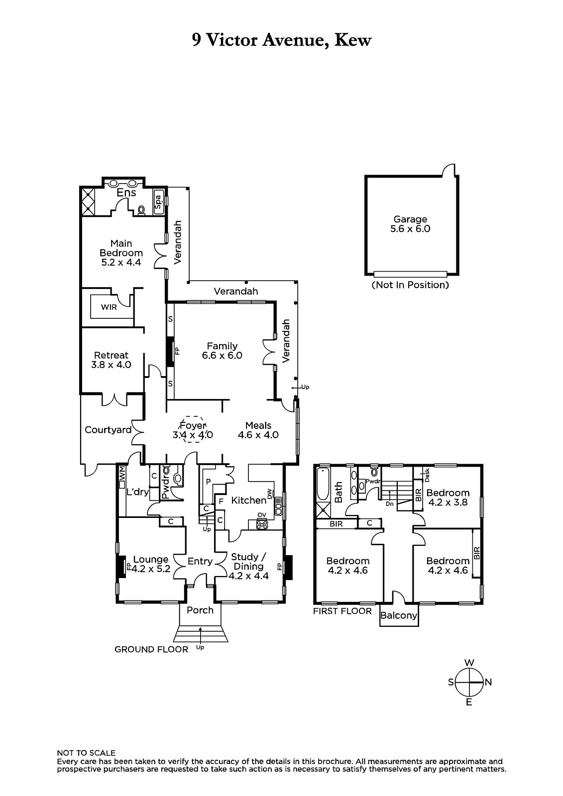
The home has been impeccably maintained and delivers exceptional family living and entertaining zones of the highest standards. A polished timber entrance hall flows past a formal sitting room, study or formal dining both with OFPs through to a vestibule opening to a courtyard and superbly proportioned family living areas including informal dining, separate living plus a stylishly appointed kitchen with parquetry floors, marble bench-tops and prestige Miele appliances; powder room and laundry. All opening to a north-west private garden with a solar heated lap-pool and alfresco entertaining area - perfect for summer living and entertaining. Complemented by four bedrooms, downstairs main with parents retreat, WIR and ensuite (spa bath); whilst upstairs features a front balcony with tree-top views to the Dandenong ranges, plus a retreat/study area, family bath and powder room. Other features include antique light fittings, alarm, ducted heating and cooling, Heat 'n Glo FP (family living), wall heaters plus remote double garage. Land size 702sqm approx.
Enquire about this property
Request Appraisal
Welcome to Kew 3101
Median House Price
$2,666,500
2 Bedrooms
$1,575,000
3 Bedrooms
$2,173,500
4 Bedrooms
$2,926,250
5 Bedrooms+
$4,580,000
Kew, positioned just 5 kilometres east of Melbourne's CBD, is renowned for its sophistication and elegance.




















