For Sale9 Thomas Street, Kew
Prime Sackville Ward Opportunity on 780sqm (approx.) with Wide 17m Frontage
Auction
Inspections
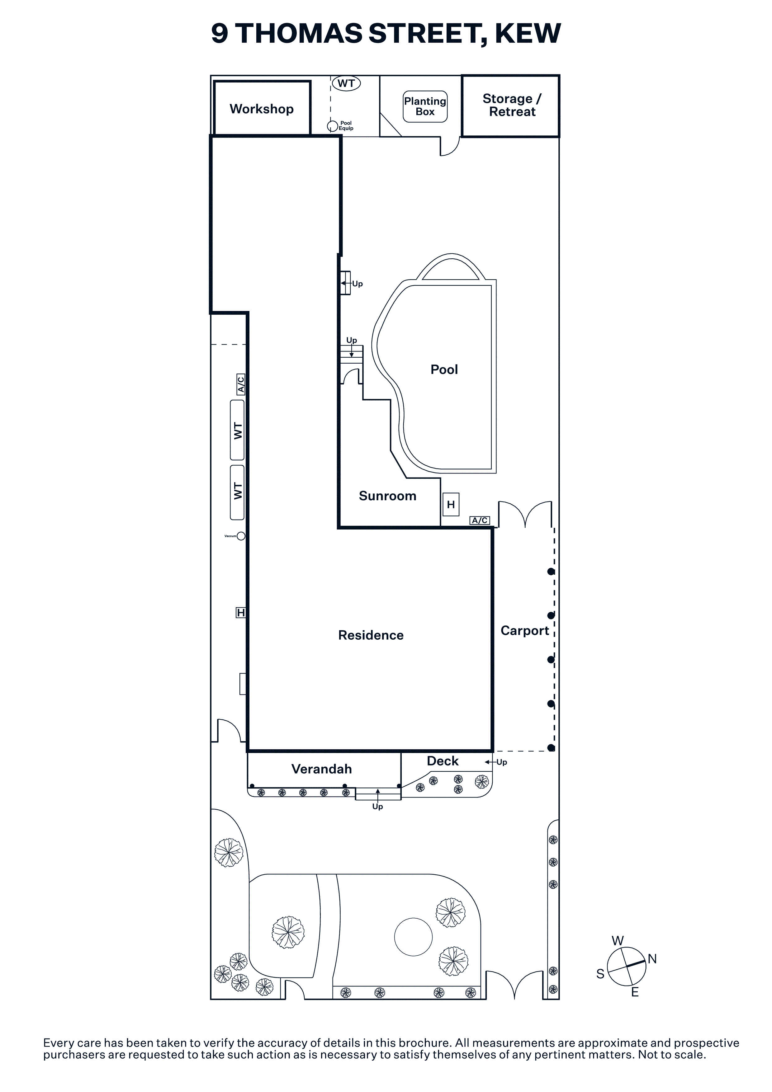
Proudly encapsulating all the grand family proportions we expect of such an exclusive Sackville Ward setting, this generously scaled and superbly appointed entertainer offers a flexible four-to-five bedroom floor plan with four bathrooms, all organised over two elevator-connected levels. Spilling outdoors to poolside alfresco entertaining that basks in northern sunshine, the home is proudly maintained on a magnificent 780 square metres (approx.) allotment and merges lavish current day livability with exciting scope to rebuild or redevelop down the track (STCA), all in a location of remarkably easy private school access and approximately 200m from the city-bound 109 tram.
Immaculately presented with natural light filling its every corner, the home’s heart is Corian-topped European kitchen / meals / living with seamless connection to a north-facing sunroom, all of which overlooks the joy of the in-ground swimming pool and spa. Perfect for large and growing families who love to entertain, the home also features a formal dining room of remarkable scope, a lounge room, upstairs living / retreat and a second kitchen to service poolside entertaining.
Upstairs, four bedrooms – including the primary bedroom with walk-in robes and an ensuite – offer impeccable accommodation and built-in robes, all adjacent to a fully-tiled spa ensuite. Further highlights of this securely gated home include a tandem double carport with secure driveway parking for at least another four vehicles, plus there is a ground level office, rear car access and a powder room.
The best of Melbourne’s private school district is simply a tram ride away from this premier position including, Xavier College, Genazzano FCJ College, Methodist Ladies College, Trinity Grammar and Ruyton Girls School. While Carey Baptist Grammar is within walking distance.
Nearby shopping includes Hawthorn’s Glenferrie Road, Kew Junction and the charms of Auburn Village.
Presented in conjunction with Gary Peer
Leor Bar 0433 820 469
Enquire about this property
Request Appraisal
Welcome to Kew 3101
Median House Price
$2,603,333
2 Bedrooms
$1,623,333
3 Bedrooms
$2,135,834
4 Bedrooms
$2,908,833
5 Bedrooms+
$4,455,000
Kew, positioned just 5 kilometres east of Melbourne's CBD, is renowned for its sophistication and elegance.

























