Sold9 Derby Street, Camberwell
Grand Family Living in a Prized Locale
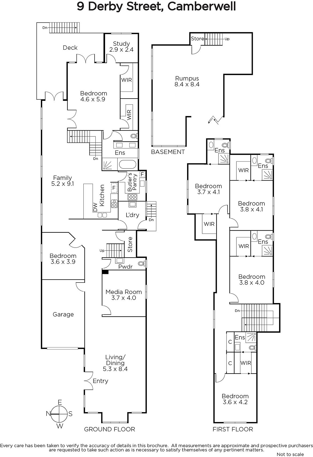
Opulent on every one of its three levels and offering five bedrooms each with marble ensuite and walk-in robe as well as flexible family living, this residence is positioned in a highly sought-after locale within Camberwell High School zone. Enter into the large formal lounge/dining highlighted by grand chandeliers, before heading past two further versatile reception rooms, which could be used as additional sitting rooms or study spaces. A superb open-plan kitchen, living and dining room graced by waterfall stone benchtops and timber cabinets flows to an exceptionally appointed butler's pantry with high-powered German silent rangehood. Beyond the informal living areas, a large undercover deck and alfresco dining area provide plenty of scope for large scale entertaining. The deck is also accessible via the lavish main bedroom, which includes private study, dual walk-in robe and ensuite featuring double vanities and spa bath. On the lower level, a large multipurpose entertaining room opens to the easy-maintenance backyard. Currently being used as a billiard room and gym, the possibilities in this vast space are endless.
Additional features include garage, double glazing, two continuous hot water systems, laundry with outdoor access, luxurious powder room, heating/cooling and ample storage throughout. Built in 2010 and well-situated on a peaceful, tree-lined street, this outstanding home with functional family-oriented living spaces is close to Riversdale Railway Station, Camberwell Railway Station, trams, shops and Camberwell Junction.
Enquire about this property
Request Appraisal
Welcome to Camberwell 3124
Median House Price
$2,605,000
2 Bedrooms
$1,521,000
3 Bedrooms
$2,244,500
4 Bedrooms
$2,830,166
5 Bedrooms+
$3,506,250
Camberwell, located just 9 kilometres east of Melbourne's CBD, stands out as a prominent suburb in the real estate market, renowned for its scenic, tree-lined streets and heritage-rich architecture.













