Sold88 Smith Street, South Melbourne
Totally Irresistible, Inside and Out
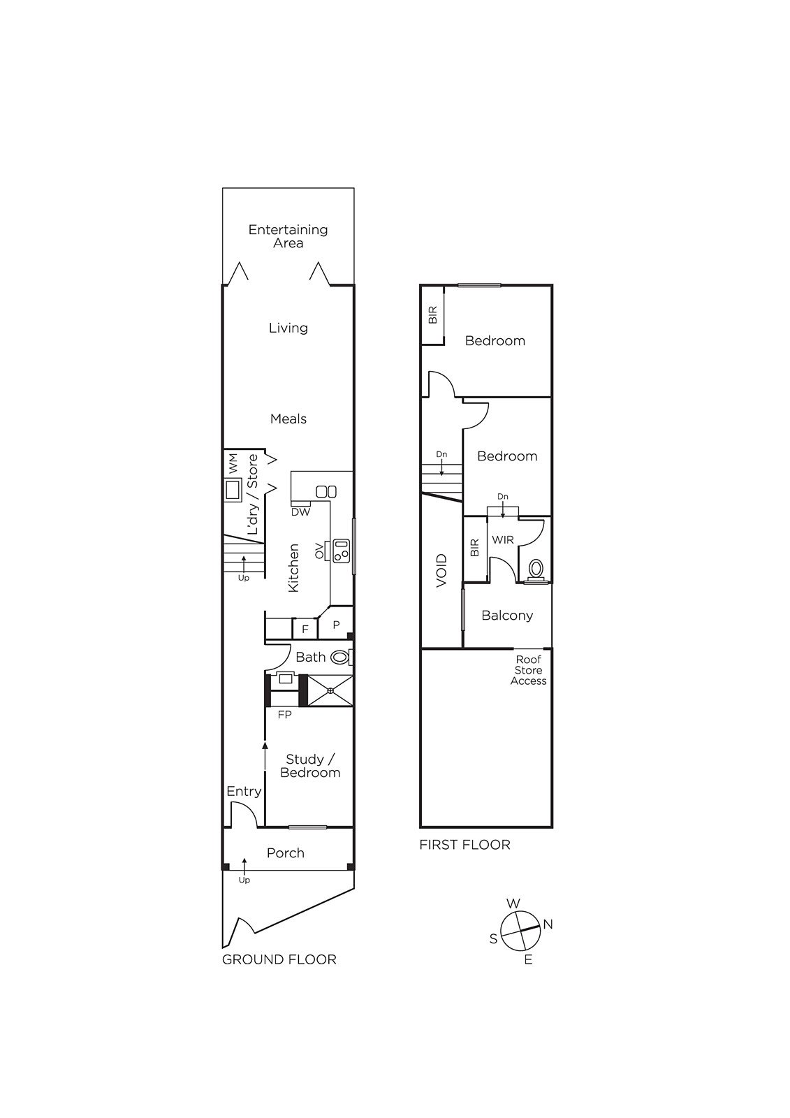
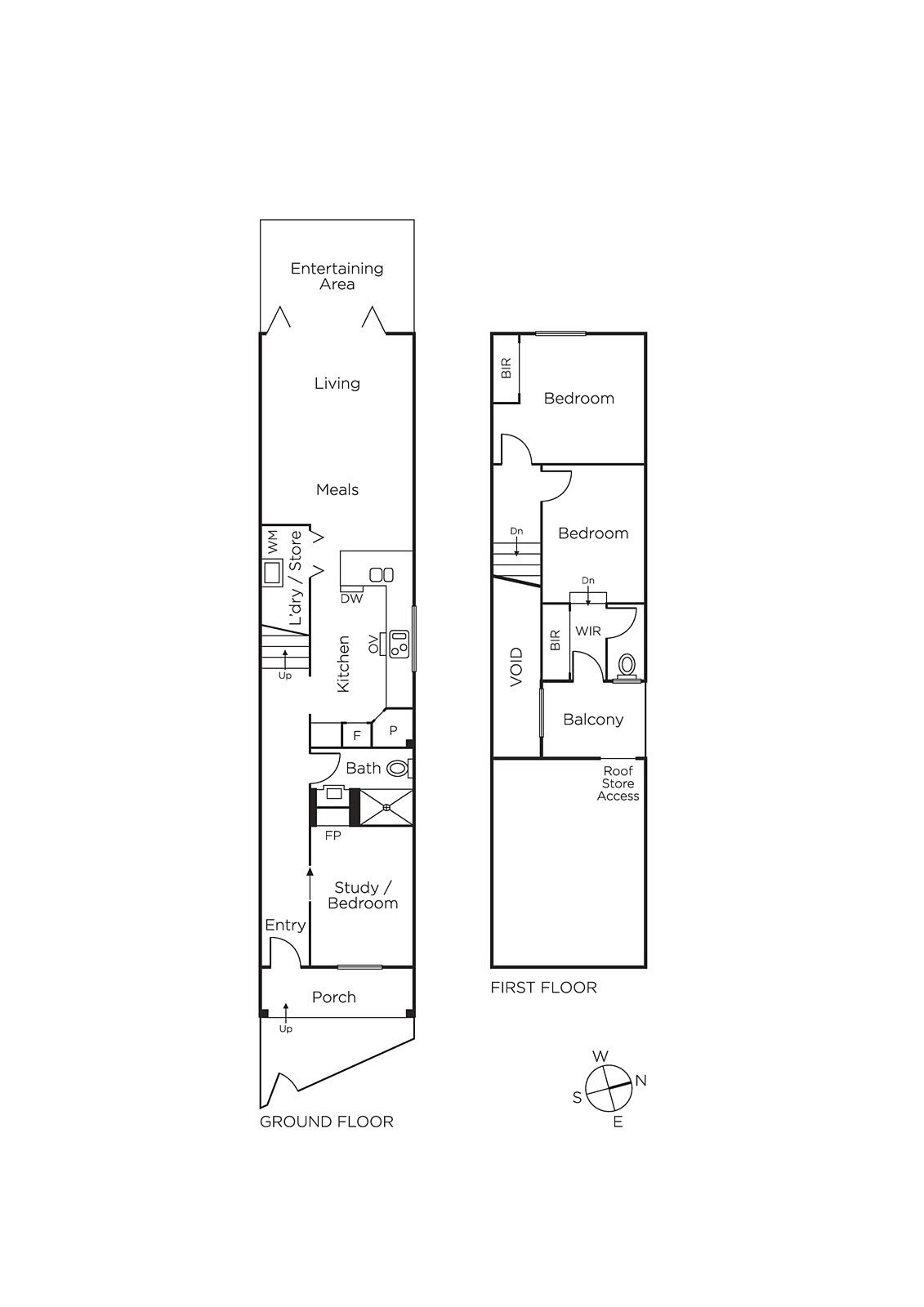
Pretty as a picture, this freestanding Victorian residence's captivating block-fronted exterior reveals radiant interior spaces that have been renovated and extended with considerable designer flair and attention to detail. Only just completed, it delivers enviable lifestyle appeal moments from Albert Park Village, St Vincent Gardens, the beach, the market, trams and schools.
Polished concrete floors with exposed aggregate provide a wonderful contrast to the ornate high ceilings in the arched hallway and downstairs bedroom with open fire and a designer bathroom. Two additional double bedrooms with built in robes are upstairs along with a powder-room and private roof terrace. The sleek gourmet kitchen featuring stone benches, European appliances and an integrated Bosch fridge/freezer and generous living and dining room open fully through bi-fold doors to a private decked north-facing courtyard.
A sublime sun-lit sanctuary, it includes Euro-laundry, storage and zoned heating/cooling.
Enquire about this property
Request Appraisal
Welcome to South Melbourne 3205
Median House Price
$1,700,000
2 Bedrooms
$1,252,500
3 Bedrooms
$1,905,000
4 Bedrooms
$2,767,500
South Melbourne, situated just 2 kilometres from the heart of Melbourne’s CBD, is a vibrant and historic suburb known for its unique blend of cultural heritage, contemporary living, and dynamic community atmosphere.
















