Sold85 Canterbury Road, Middle Park
“Karmen” Timeless Elegance, Modern Potential
Opposite Albert Park Lake with secure parking via Canterbury Place, 'Karmen' is a distinguished example of timeless European elegance, presenting a remarkable city-fringe lifestyle opportunity with its generous dimensions, immediate quality and exceptional renovation potential.
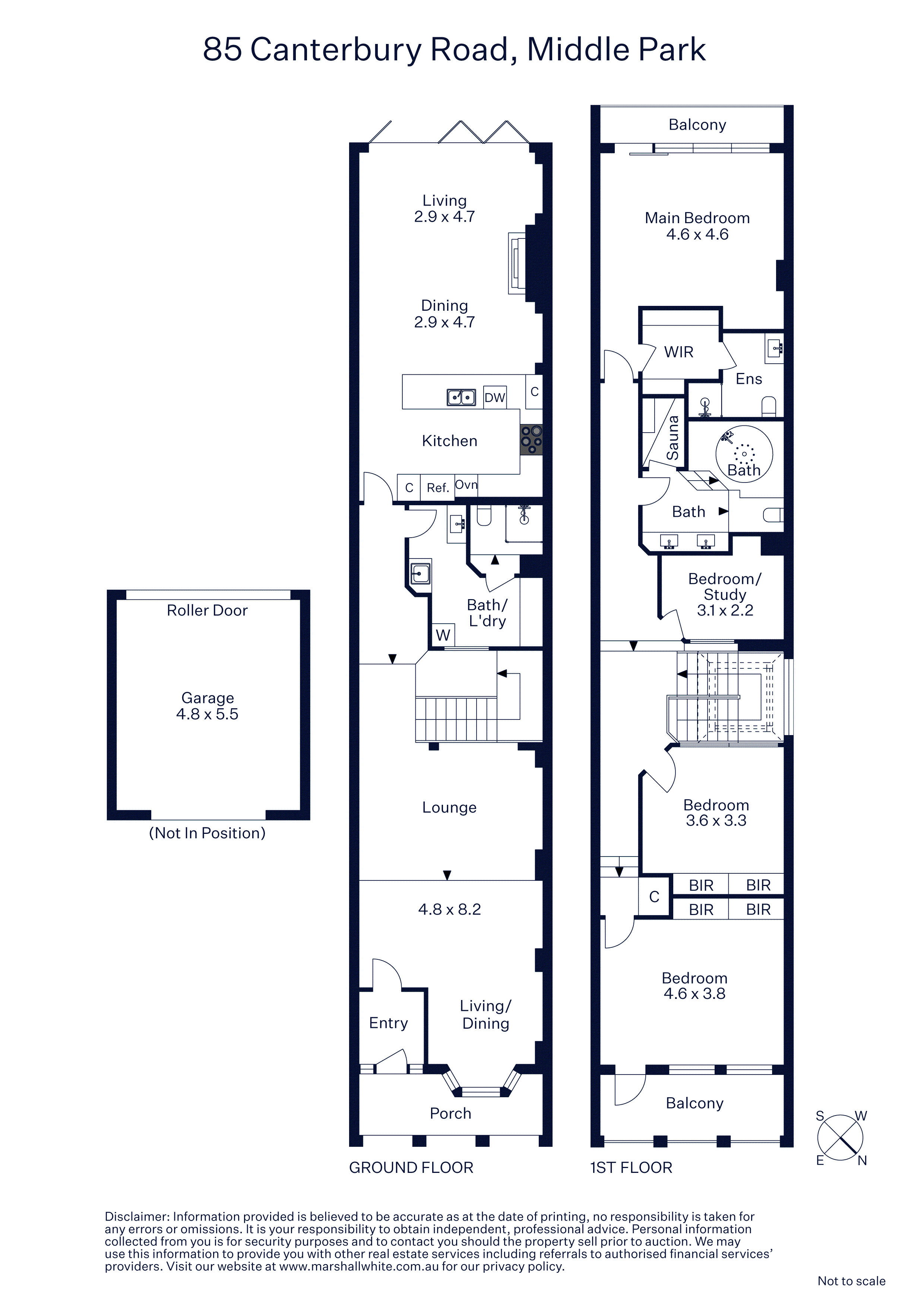
Beyond a proud facade and marble-tiled verandah, the home's unique layout is immediately striking, with parquet flooring flowing through the formal living and dining rooms, highlighted by a bay window and an extraordinary glow of natural light. A ground-floor bathroom hosts laundry facilities and granite countertops, preceding the open-plan living, dining and kitchen domain to the rear, featuring granite benchtops and an ambient open fireplace. Timber bi-fold doors extend to the rear garden and terrace, where established greenery, an awning and central water feature create an idyllic setting for alfresco entertaining.
Upstairs, the main bedroom features a private balcony, an ensuite, and a walk-in robe. This is complemented by two additional bedrooms, each with robes, including one with a park-facing balcony, a home office or a fourth bedroom with robes, and a central bathroom with a large spa. Positioned within the Albert Park College and Middle Park Primary School zones, it is within walking distance of MSAC, Albert Park Lake and the city-bound light rail (#96), and includes abundant storage, secure off-street parking to the rear, and intercom.
Land size: 253sqm approx.
Enquire about this property
Request Appraisal
Welcome to Middle Park 3206
Median House Price
$2,865,000
2 Bedrooms
$1,885,000
3 Bedrooms
$2,412,500
4 Bedrooms
$3,873,750
Between the city of Melbourne and the expansive waters of Port Phillip Bay, Middle Park is a prestigious suburb known for its well-preserved Victorian and Edwardian architecture.




















