Sold83 St Vincent Street, Albert Park
Innovative Light-Filled Design
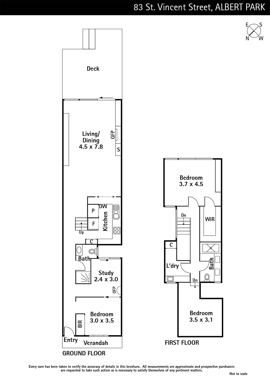
Architectural nuances, feature windows and light voids create a connection with outside from within this creatively designed three-bedroom domain, metres from Gasworks Arts Park. Living spaces present versatility with bedroom, study and kitchen on the ground floor flowing to huge lounge/dining opening to a lush rear garden with smart entertaining deck and outside lighting. Limed timber floors accent first floor main bedroom with WIR, bathroom, laundry and loft room completing a stunning abode in a brilliant location with South Melbourne Market, Bay Street, Bridport Street shops, St Vincent's Park and the beach all within easy reach. Includes Heat & Glo fireplace to lounge and study, two bathrooms, copious storage, pristine polished concrete floors, bijou front terrace and vehicle access via Little St Vincent Street.
Enquire about this property
Request Appraisal
Welcome to Albert Park 3206
Median House Price
$2,440,000
2 Bedrooms
$1,677,500
3 Bedrooms
$2,518,750
4 Bedrooms
$3,762,500
Albert Park, nestled just 3 kilometres from Melbourne’s CBD, is a picturesque suburb known for its blend of historic charm and modern amenities.












