Sold80 Brougham Street, Kew
A Seamless Blend of Classic and Contemporary Style
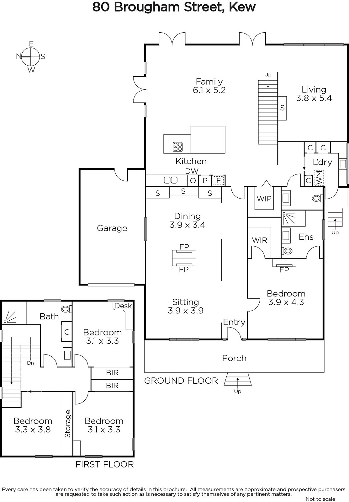
Nestled behind an attractive picket fence, semi-circular driveway and lush landscaped gardens, this superbly presented double-fronted c1890 Victorian residence is highlighted by beautifully preserved period features and an inspired contemporary extension and renovation. A wide entrance hallway introduces classically proportioned formal living and dining rooms connected by a double-sided gas fireplace and across the hall, a luxurious main bedroom retains plenty of period charm comprising a walk-in robe and luxury ensuite. A cook's kitchen with stainless steel benchtops and marble island bench with integrated European appliances forms part of a contemporary family room alongside a relaxed sitting room. Multiple sets of French doors lead to a resort-style year-round undercover dining with integral seating and a built-in barbecue, well-suited to large scale entertaining around the saltwater solar-heated pool. A stylish floating staircase leads to three bright first-floor bedrooms sharing a sleek bathroom creating privacy from ground floor living accommodation. Also includes pantry, powder room, laundry, 18 solar panels, 20,000 litre underground water tank, retractable awnings, garage with remote access and plenty of parking. An attention to fine detail, quality materials and low energy living includes such features as Victorian Ash flooring, sisal carpet, imported marble and tiling. This fine home is perfectly positioned to access Kew Junction, High Street shops and cafes, many schools within walking distance and quick access to Trinity Grammar, Ruyton, Xavier, MLC and an array of other excellent public and private schools. Off street parking for four cars via two driveways and circular entry.












