Sold78 Charles Street, Kew
Elegant Victorian With Potential on 956sqm (approx.)
Exemplifying the elegance of the Victorian era this gracious slate roof Hawthorn brick residence c1890 showcases an array of classic period features, including return iron lacework verandah, coloured leadlight glass, detailed cornices and ceiling roses representing its past character. Gracing a magnificent allotment with a wide frontage it has an impressive street presence in the heart of the Kew private school precinct. With easy access to sought-after Kew amenities including the Recreation Centre or Junction shopping with the popular Leo's Fine Foods, Toscanos, cafes and restaurants. Also close to Glenferrie Road or the Victoria Gardens Complex for additional shopping options, with public transport plus the Eastern Freeway for travel to the CBD.
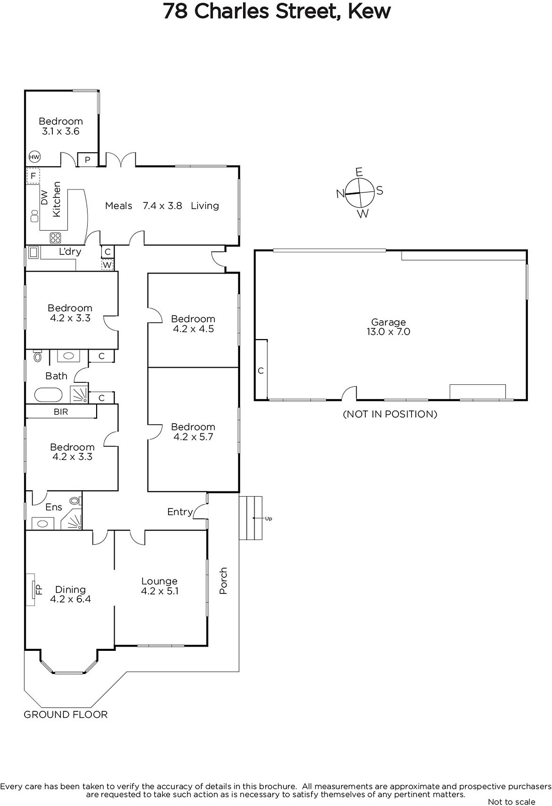
This beautiful family residence delivers typically spacious proportions whilst providing an exceptional opportunity to renovate and modernise the interior to suit today's family lifestyle. The accommodation features a Baltic Pine arched hallway leading to a formal sitting room and dining room with bay window, five bedrooms or four plus study, main with ensuite and a period-style family bathroom. Through to a family living and dining area including a timber and Bosch appointed kitchen with adjacent laundry and office flowing to a paved alfresco area and private garden. Other features of this gracious family residence include alarm, hydronic heating, R/C air conditioning, OFP, solar panels, front off-street parking and remote 4-car garage/storage with rear lane access. Land size: 956sqm (approx.)









