Sold76 Bonanza Road, Beaumaris
Huge Land & Extraordinary Bay Views
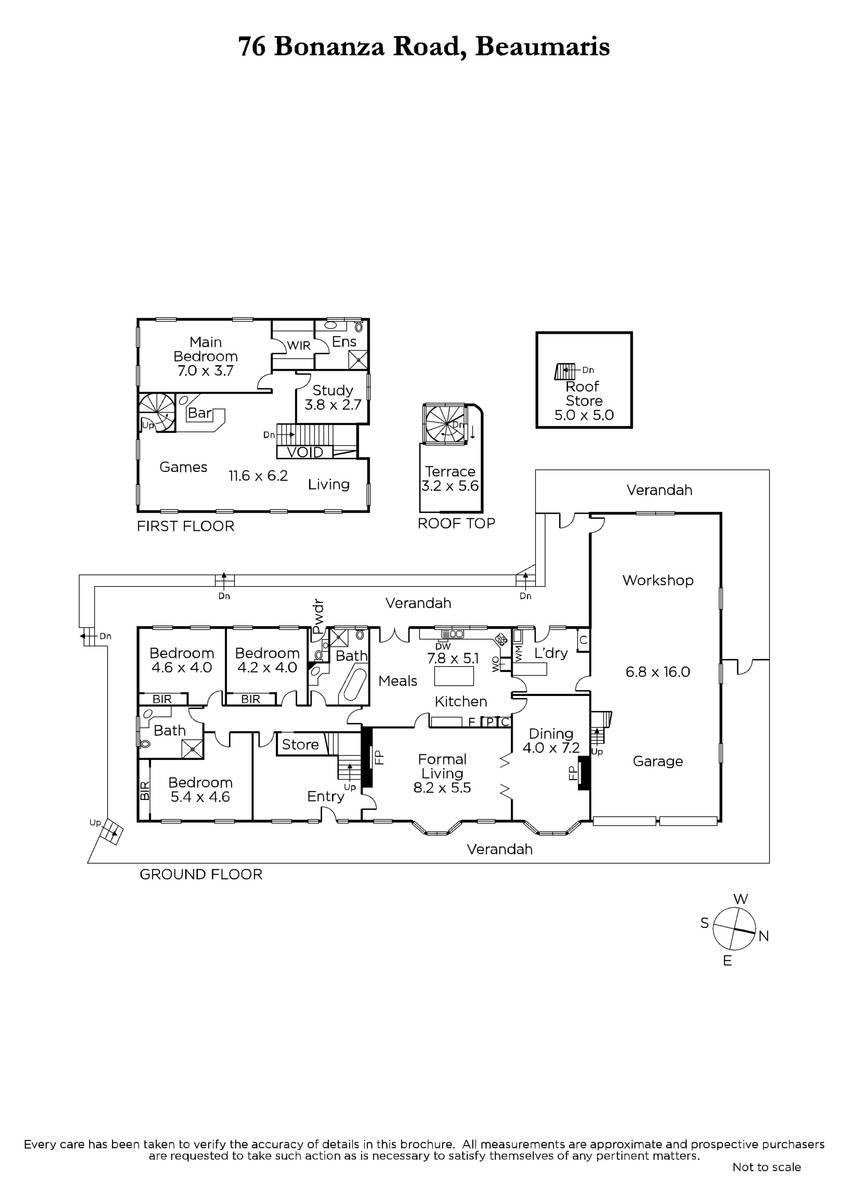
One of the biggest addresses ever offered in Beaumaris sits high on Bonanza Hill, with spectacular bay views and a substantial home at its heart. It's a rare find in a brilliant beachside neighborhood, with 3,050sqm (approx.) of land, an immaculate five-bedroom, builder's own home, north-south tennis court, pool and spa next to a barbecue kitchen, and rooftop viewing platform. Panoramic water views and sandy beaches stretch out before you, the Dandenong Ranges and the You Yangs are on show, and Monash University and Mentone's school and church towers are part of the far-reaching vistas. Offered for the first time in nearly 50 years, this is an exceptional address with a 60m (approx.) frontage and huge potential (STCA). A winding driveway with remote-control gates makes its way up to one of the area's highest points, where seclusion and serenity await. The house features living zones and bedrooms on two levels, a big upstairs games room with a wet bar, a double-oven kitchen, and three bathrooms. You can see the bay and established garden from many rooms, there's a six-car garage, and undercover boat and caravan parking. The cared-for and comfortably appointed interior includes a spacious entry foyer, fireplaces and gas ducted heating throughout, air conditioners, and generous storage. This first-class address is an easy walk to the beach, shops and train stations, Illaroo Reserve is 100 metres (approx.) away, and families will appreciate being in both the Beaumaris and Mentone Girls' Secondary College zones.
Enquire about this property
Request Appraisal
Welcome to Beaumaris 3193
Median House Price
$2,100,000
2 Bedrooms
$1,325,000
3 Bedrooms
$1,800,000
4 Bedrooms
$2,286,250
5 Bedrooms+
$2,854,000
Beaumaris, 20 kilometres southeast of Melbourne's CBD, is a coastal suburb known for its stunning beaches and cliff-top parks.


























