Sold75 Comer Street, Brighton East
Indulgent, Contemporary Bayside Splendour
REGISTRATION FOR OPEN
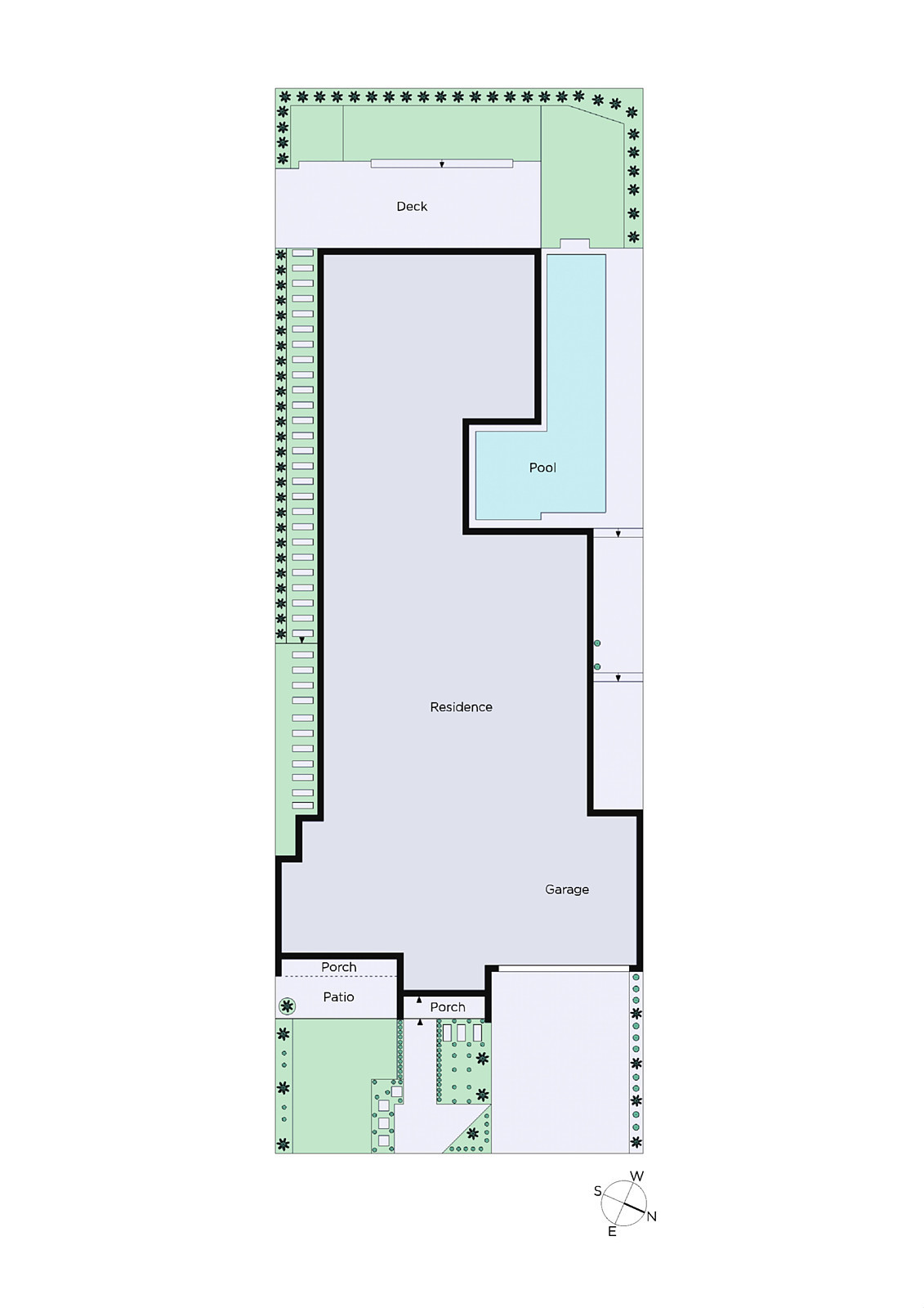
Bold architectural features and indulgent finishes define the contemporary splendour and lavish liveability of this stunning five-bedroom, five-bathroom residence with swimming pool and spa. Custom built and designed, the inspired layout invites luxe family living and impressive entertaining in an esteemed Brighton East neighbourhood.
Engineered oak flooring sweeps through the entry level living spaces, where a double-height void, extra-wide staircase, and upper-level mezzanine, create multi-dimensional appeal. Refined custom joinery, including a wine storage wall, is both beautiful and practical, and sheer linen auto curtains add elegant texture. Floor-to-ceiling glass in the main downstairs living/dining zone with gas log fire, opens out to rear alfresco deck with a striking steel pergola feature. The azure-blue glass mosaic-tiled gas/solar heated pool and spa, is perfectly positioned to capture northerly sun, which casts delightful pool shimmers on the living room walls. A vast island bench topped with Blanco Divino quartz introduces the stunning main kitchen with Meile appliances including gas cook-top, dual ovens, dishwasher and integrated fridge/freezers. The adjoining butler's kitchen also features an integrated Miele microwave and second dishwasher and Blanco Divino benchtops. The luxury stone surface is carried through to the vanities in all bathrooms and ensuites, which are fully tiled in imported Italian porcelain, and luxuriously appointed to five-star standards. Overlooking the pool and spa, the zoned master suite downstairs features a walk-through fitted robe and ensuite. A guest suite or second master with ensuite also features downstairs whilst upstairs boasts three bedrooms, two with walk-through robes and ensuites, as well as the main bathroom, a spacious mezzanine retreat and home office area with balcony access.
There is off-street-parking for two cars as well as a triple remote operated garage and storage/utility room. Includes alarm system, and security cameras, remote blinds and curtains downstairs, app-based controls for pool and spa, laundry with external access, powder room, premium wool-blend carpets, zoned gas central heating and reverse cycle air conditioning. On a 666sqm (approx.) block, in an excellent beachside, family friendly location within easy reach of a selection of Melbourne's most prestigious schools, including St. Leonards and Haileybury, close to the Brighton Golf Course and Dendy Park, and a leisurely walk to Hampton Street cafes, Church Street and Brighton Beach.






















