Sold70 Park Street, South Yarra
Victorian Elegance in the Domain Precinct
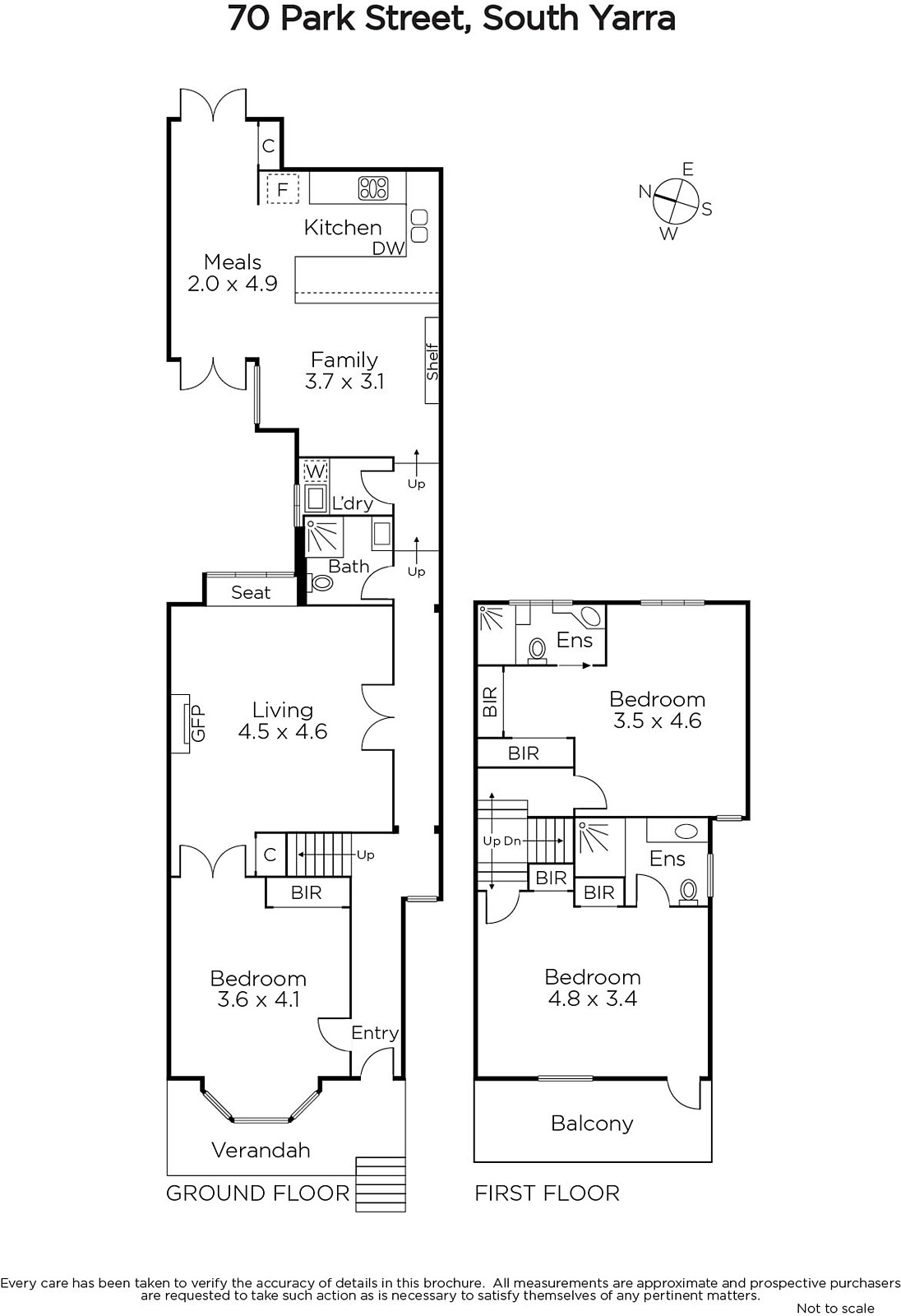
Magnificently situated in a prime boulevard between the Botanic Gardens and Fawkner Park, this gracious balconied Victorian residence's superbly renovated interior delivers instant lifestyle allure while also offering scope to easily extend if required (STCA).
The imposing double arched hallway featuring parquetry floors and high ceilings introduces a beautiful sitting room with marble gas fireplace. Glossy white tiles accentuate the contemporary themes in the light-filled living and dining spaces surrounding a premium gourmet Smeg kitchen boasting stone benches. Living opens to both an internal north-facing courtyard with water feature and a landscaped private northeast courtyard with secure off street parking for 2 cars. A stunning downstairs bedroom with bay window and built in robes and a chic bathroom are matched upstairs by two additional double bedrooms with built in robes and en-suites.
Offering close proximity to schools and Toorak Rd trams, this glorious home also includes zoned heating and cooling, alarm, video intercom, laundry and irrigation.
Enquire about this property
Request Appraisal
Welcome to South Yarra 3141
Median House Price
$2,176,000
2 Bedrooms
$1,324,000
3 Bedrooms
$2,305,834
4 Bedrooms
$4,020,000
5 Bedrooms+
$5,150,001
South Yarra, an iconic Melbourne suburb, is renowned for its sophisticated charm, merging high-end retail, exquisite dining, and vibrant nightlife with green spaces.













