Sold7 Regent Street, Brighton East
North Facing Luxury in Blue-chip Locale
Sold by Ben Vieth - Marshall White
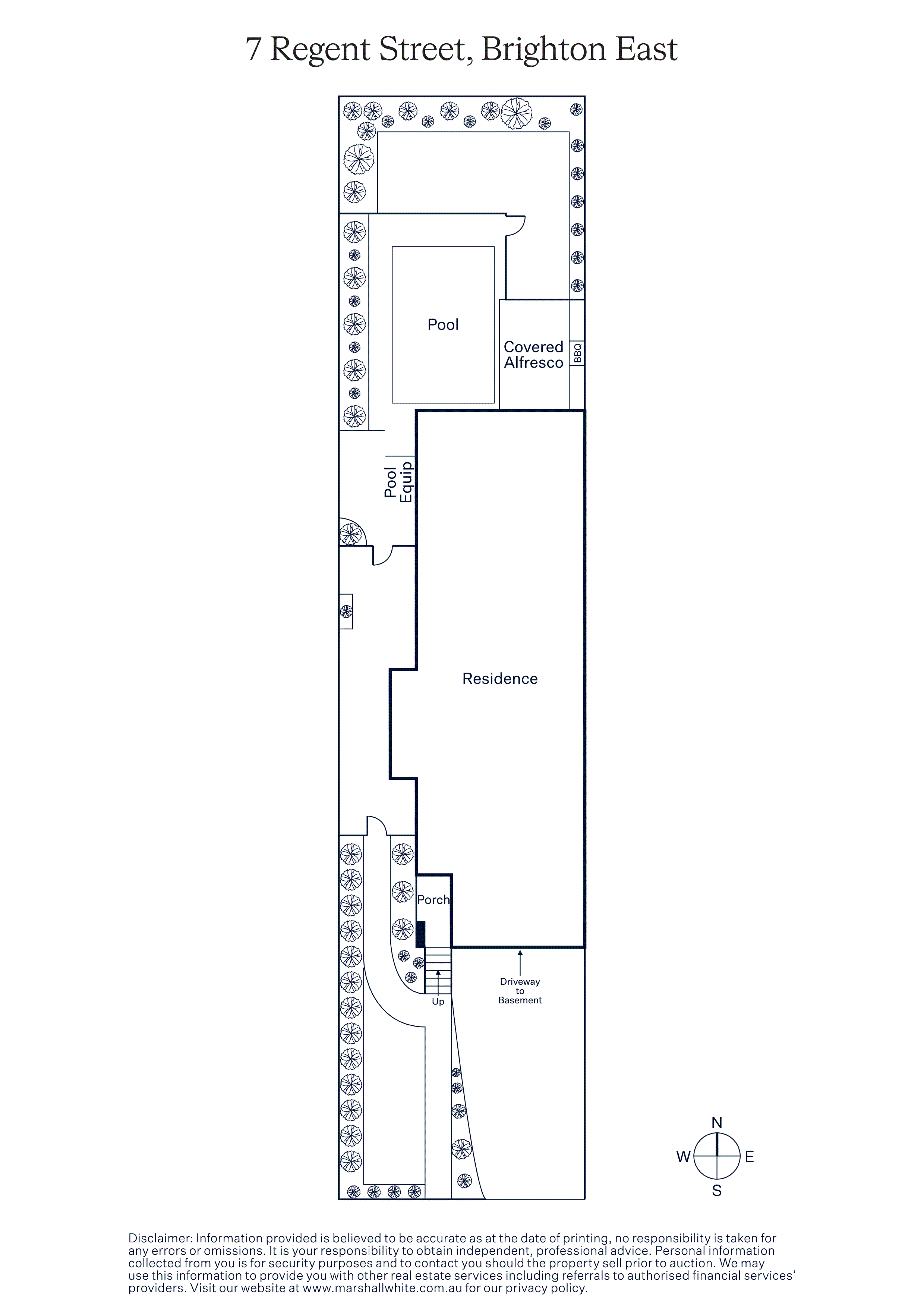
Epitomising the utmost in effortless contemporary liveability, this architecturally and technologically sophisticated four-bedroom beachside Brighton East residence celebrates indulgent north-facing indoor/outdoor living and entertaining in a prized blue-chip neighbourhood.
Set over three levels, connected by American Oak stairs, the intuitive layout is designed to optimise the natural, rear-facing northerly light. The expansive main living and culinary zone is surrounded by floor-to-ceiling glass with automated blinds and sliding doors that provide seamless connectivity to the undercover alfresco terrace with built-in barbecue and rangehood. The sparkling in-ground solar heated pool casts delightful shimmering lights on the living room’s ceilings, while a gas ‘pebble’ open fireplace enhances the stylish ambience. Centrally positioned for gourmet entertaining with a large island bench for family gatherings, the central stone kitchen has Miele appliances including convection and microwave ovens, induction cooktop and an integrated dishwasher. Zoned on the ground floor, the main bedroom has a walk-in robe and a fully-tiled ensuite with twin vanities and walk-in shower. Upstairs is equally luxurious, with a family bathroom, additional three bedrooms, all with built-in robes and spacious rumpus room. On the lower floor there is a sumptuous home cinema room, equipped with screen and projector, plus a full-size laundry (or potential bar/kitchenette), a wine cellar / storage room and access to the oversized basement double garage with built-in wall to wall storage cabinets.
Additional features of the home include reverse cycle heating/cooling in concealed bulkhead units, home automation including C-Bus/Wi-Fi, security alarm and camera, video intercom, Sonos sound system (internal and external), ducted vacuum (including kicker sweeper in the kitchen) and automated irrigation system.
In the heart of a prized Brighton East precinct, with a reserve just doors away, it’s an easy stroll to Dendy Park, Brighton Golf Course, Were Street cafes, Church Street shopping, station and the beach. Zoned for Brighton Beach Primary School, the home is also central to esteemed education choices including St. Leonards College, Haileybury College, Brighton Grammar and Firbank Grammar.
Enquire about this property
Request Appraisal
Welcome to Brighton East 3187
Median House Price
$2,109,000
2 Bedrooms
$1,437,500
3 Bedrooms
$1,807,500
4 Bedrooms
$2,382,500
5 Bedrooms+
$2,769,000
Known to be quieter than its neighbours, Brighton East is a highly sought-after location, blending community vibes, heritage aesthetics and a suburban charm that keeps locals loyal to its appealing beachside lifestyle.
























