Sold69 Wright Street, Middle Park
Style and Versatility in Superb Locale
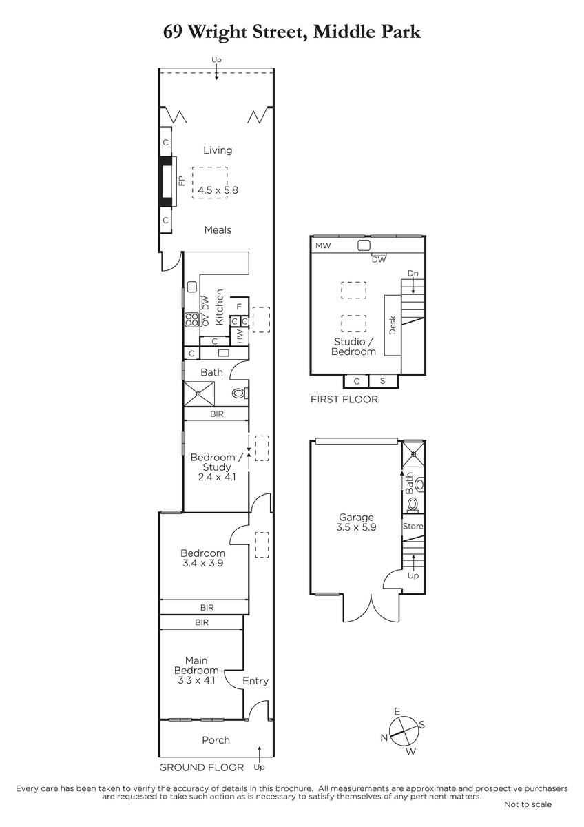
Impeccably stylish and impressively versatile, this brilliantly renovated solid brick Edwardian residence's stunning and sun-drenched dimensions, complete with studio apartment and garage, are idyllically situated between the beach and Albert Park Lake.
Limed oak floors accentuate the sense of light in the arched hallway, two gorgeous bedrooms with built in robes, a home-office and stylish bathroom. Vaulted ceilings add scale to the sleek gourmet kitchen boasting Bosch appliances and stone benches and generous open plan living and dining room with an open fire. Bi-fold doors open the living completely to the private landscaped northeast paved garden and the garage with studio apartment, an ideal home office or guest accommodation with chic bathroom and kitchenette.
Walking distance to Middle Park Village, trams, the light rail and schools, it includes hydronic heating, RC/air-conditioners, ceiling fans, Euro-laundry and ample storage.
Land size: 5m x 42m = 210 approx.
Enquire about this property
Request Appraisal
Welcome to Middle Park 3206
Median House Price
$2,865,000
2 Bedrooms
$1,885,000
3 Bedrooms
$2,412,500
4 Bedrooms
$3,873,750
Between the city of Melbourne and the expansive waters of Port Phillip Bay, Middle Park is a prestigious suburb known for its well-preserved Victorian and Edwardian architecture.























