Sold62 Wentworth Avenue, Canterbury
No Heritage Overlay in the Golden Mile
A magnificent Cedar tree graces the front garden and entry to "Baraka" c1895 - a beautiful Victorian residence on a wide corner allotment enviably located in one of Canterbury's finest and most highly regarded areas, the Golden Mile. Placing this property amongst the areas finest homes close to Whitehorse or Maling Road shops and cafes, the Balwyn Cinema plus many of Melbourne's prestige schools. Whilst parklands and public transport options are all just minutes away - enhancing the lifestyle appeal of this prestigious location. The property offers the enticing options of either a brilliant site for the construction of a new luxury home, or an exceptional opportunity to update and extend the existing home (STCA).
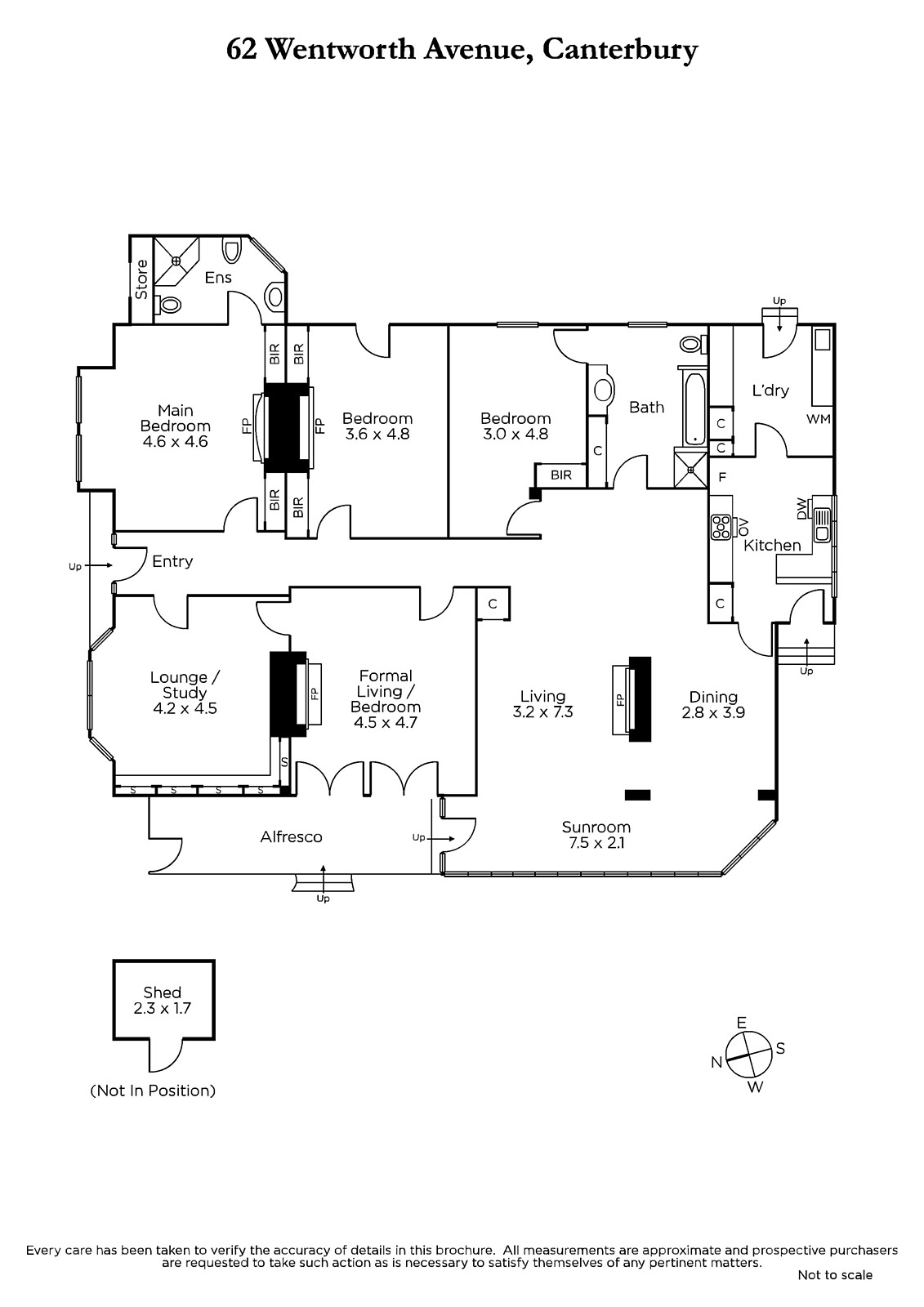
The interior of the existing home is inspired by the enduring appeal of these homes with a seamless blend of period attributes including high ceilings adorned with ceiling roses and is introduced by a pretty façade with iron lacework verandah, matching trimmed carport, bay windows and coloured leadlight glass door surround. Flexibility is the key to the accommodation with a double arched hallway flowing past a library/study and sitting room or fourth bedroom, three additional bedrooms with BIRs, the main has an elegant ensuite and there is a period-styled family bathroom. All complemented by a light-filled contemporary family domain with living and dining divided by a fireplace plus floor-to-ceiling windows overlooking a sun-drenched high-walled courtyard garden - providing a tranquil outdoor entertaining area. Plus a sleek kitchen featuring granite bench-tops, Euro S/S appliances and a laundry with cellar underneath. Other features include alarm, ducted heating, original OFPs, R/C air conditioner, storeroom and remote double carport.
Land size: 765sqm approx.
Enquire about this property
Request Appraisal
Welcome to Canterbury 3126
Median House Price
$3,775,000
3 Bedrooms
$2,489,000
4 Bedrooms
$3,696,250
5 Bedrooms+
$4,590,000
Canterbury, 10 kilometres east of Melbourne's CBD, radiates exclusivity and prestige. This esteemed suburb is renowned for the picturesque Canterbury Road, lined with majestic trees, and the charming Maling Road shopping village.




















