Sold62 Hambleton Street, Middle Park
Splendid House, Superb Street
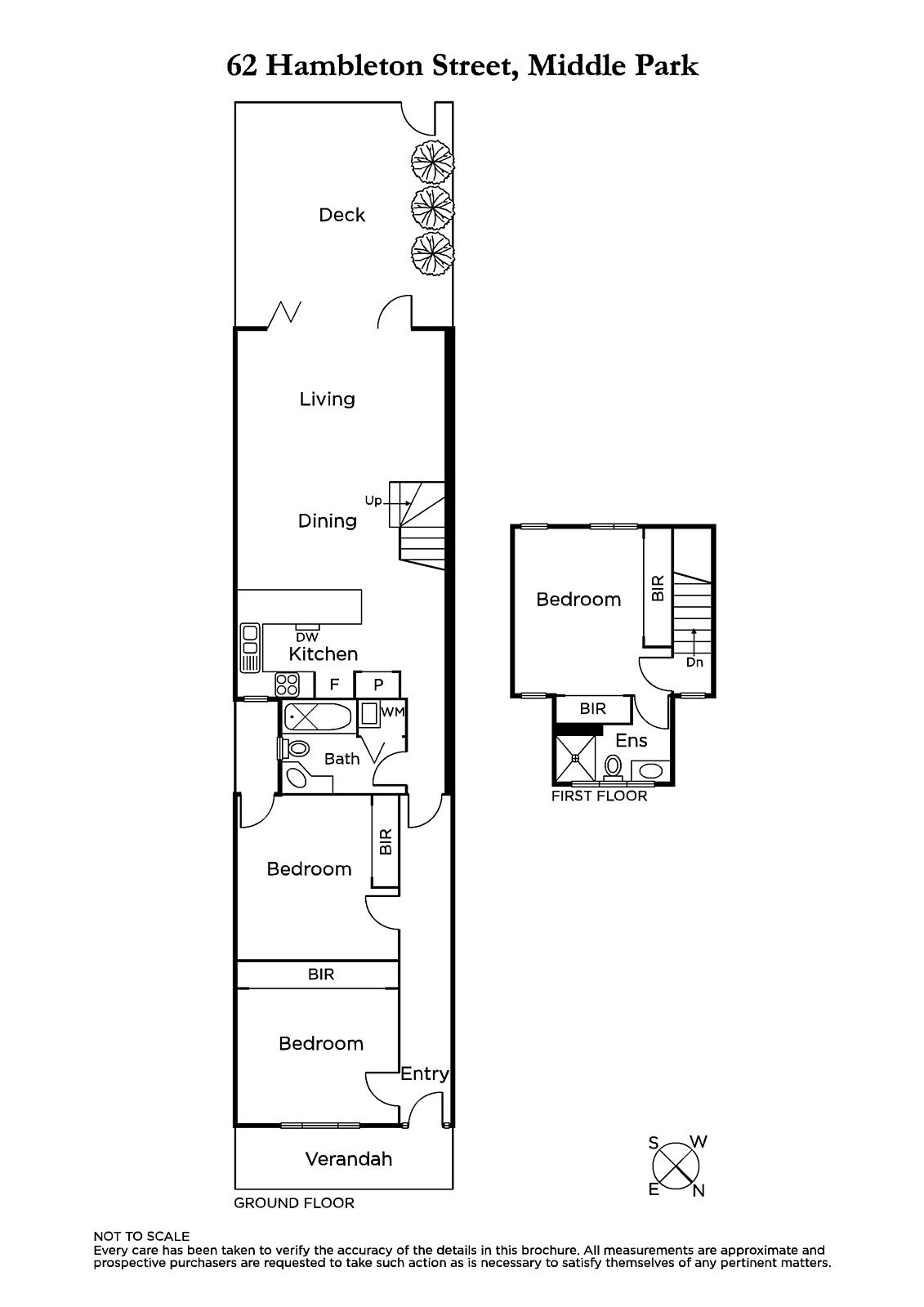
In one of the most sought after streets in Middle Park and defined by a beautiful street scape and a revered neighbourly community, this renovated Victorian home has been designed with impressive style to deliver functional and convenient living. A streamlined interior highlighted by Blackbutt hardwood timber floorboards exudes an inviting modern feel complimenting the high Victorian ceilings with excellent period detail. Two spacious bedrooms with ample built-in robe storage are well serviced by a smart central bathroom and laundry. Upstairs, the main bedroom is complemented by en-suite and built-in robes. The entertainer's kitchen with stone bench tops and quality appliances leads to soaring cathedral style ceilings over open plan living and dining filled with excellent light. Full height bifold doors open to a private decked courtyard capturing plentiful afternoon sun. Pedestrian gate onto wide bluestone lane access. Superbly appointed with roof storage, polished floorboards, plantation shutters, ducted heating / split system cooling. Moments to Middle Park Primary School, beach, Albert Park Lake, MSAC, Middle Park shopping village and light rail.
Enquire about this property
Request Appraisal
Welcome to Middle Park 3206
Median House Price
$2,928,333
2 Bedrooms
$1,911,167
3 Bedrooms
$2,383,333
4 Bedrooms
$3,832,501
Between the city of Melbourne and the expansive waters of Port Phillip Bay, Middle Park is a prestigious suburb known for its well-preserved Victorian and Edwardian architecture.















