Sold62 Hambleton Street, Middle Park
Victorian Elegance and Modern Comfort
Nestled within one of Middle Park's most coveted streetscapes, this meticulously renovated dual-level Victorian residence exudes sunlit sophistication, delivering a peerless lifestyle on the doorstep of Albert Park Village, MSAC and the bay.
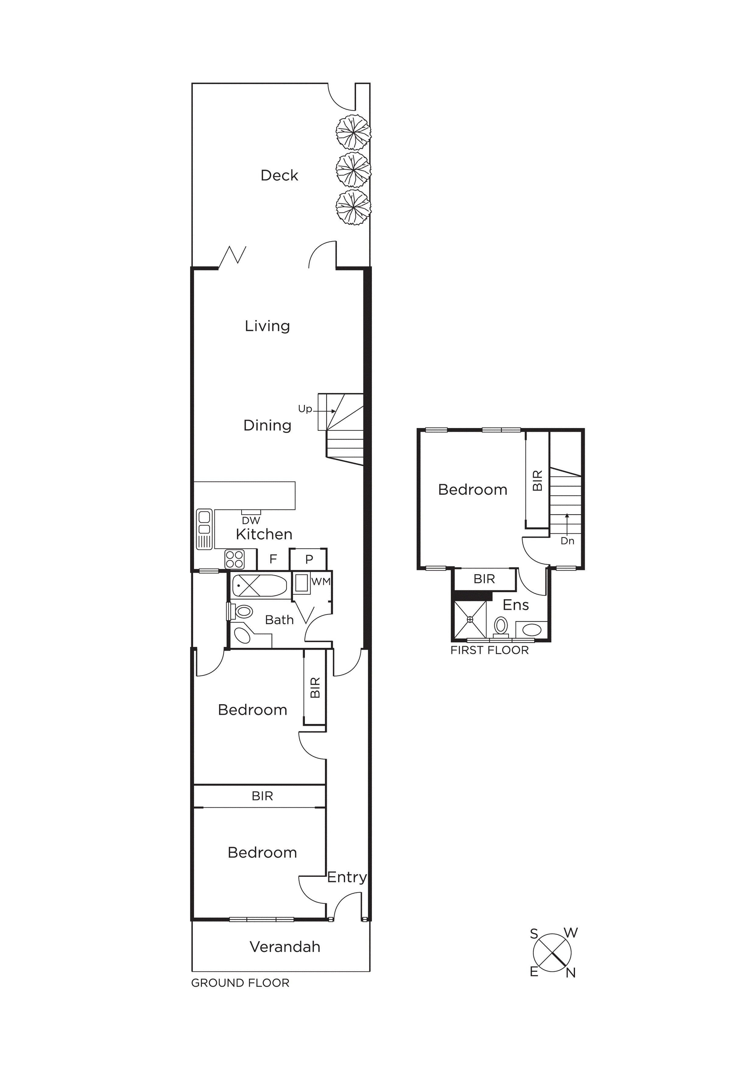
An idyllic block-front facade and picket fence set the tone for the streamlined interior, highlighted by hardwood timber floors and high ornate ceilings throughout a traditional corbel arch that leads directly to the sun-drenched rear. Designed to capture the light through bi-fold glass and heightened by soaring raked ceilings, inviting warmth into the entertainment zone, where a stone-bench kitchen hosts open-plan living and dining areas and al-fresco relaxation within the private decked courtyard.
Upstairs, the main bedroom is complemented by an ensuite and built-in robes, while two ground-floor bedrooms are each fitted with extensive robes and period beauty. Just a short stroll to Middle Park Primary School, the beach, the Albert Park Lake precinct, Armstrong Street village, and the light rail, this lifestyle prize boasts ample storage, plantation shutters, split system heating/cooling, and a bright central bathroom.
Enquire about this property
Request Appraisal
Welcome to Middle Park 3206
Median House Price
$2,779,500
2 Bedrooms
$1,716,875
3 Bedrooms
$2,445,000
4 Bedrooms
$3,942,500
Between the city of Melbourne and the expansive waters of Port Phillip Bay, Middle Park is a prestigious suburb known for its well-preserved Victorian and Edwardian architecture.

















